
In almost all cases, things in parenthesis, "( )", are added information by me.
US4318522 Gimbal Mechanism
US4809675 Himawari
US4943141 Himawari
US4890599 Polar Axis Mount
Dr. Thomason solar patents
US5103802 Thermosyphon heat-storage and backup heat apparatus
US4852547 Heat storage
US4369764 Solar heat storage system
US4343293 Solar domestic water heater
US4284059 Heat storage and heat exchanger
US4265219 Solar heating (cooling) system
US4158358 Heat and cold storage apparatus
US4146011 Solar energy
US4139055 Solar heating (cooling)
US4134544 Solar heating system
US4132220 Solar energy collector
US4102327 Solar heating (cooling) system
US4082143 Solar energy
US4048812 Solar-energy conserving
US4029082 Heat and cold storage apparatus
US3989031 Solar heat collector
US3980130 Heat, cold and dry storage
US3812903
US3412728
US3369541
US3295591
US3254703
US3254702
US3236294 the Venerable Thomason House
http://www.google.com/patents?vid=USPAT5473110__
http://www.delphion.com/cgi-bin/viewpat.cmd/US05473110__?SCALE=0.300&download_only=yes&BPS=8&page=1
| Patent Link | yr | Category | Inventor | Description
| Building | | Building
| BuildingHyPar | | Building Hyperbolic Paraboloid Roof
| US3090162 | 1963 | Building HyPar Roof | Baroni; Giorgio | Builging Construction
| US3186128 | 1965 | Building HyPar Roof | Charles; Harold H. | Hyperbolic Parabololoidal Construction
| US3094812 | 1963 | Building HyPar Roof | La Foy; Eugene L. | Peeler; Lawrence F. Precast unit for forming a hyperbolic paraboloidal roof structure
| US2891491 | 1959 | Building HyPar Roof | Richter; Don L. | Precast unit for forming a hyperbolic paraboloidal roof structure
| US3958375 | 1976 | Building HyPar Roof | Tully; Donald F. | Prefabricated Hyperbolic Paraboloid Roof
| control | | Control Lighting
| US6695090 | 2001 | Control Lighting | McAllister; Michael C. | Back-lit handlebar control assembly | (Motorcycle Riders Holdings Corp.) Control
Self-powered | | Self-powered Switch Initiation System
| US5632841 | 1995 | Control Self-powered | Hellbaum; Richard F. | Bryant; Robert G. Fox; Robert L. Thin layer composite unimorph ferroelectric driver and sensor | () US5639850 | 1995 | Control Self-powered | Bryant; Robert G. | Process for preparing a tough, soluble, aromatic, thermoplastic copolyimide | () US5741883 | 1994 | Control Self-powered | Bryant; Robert G. | Tough, soluble, aromatic, thermoplastic copolyimides | () US6734603 | 1997 | Control Self-powered | Hellbaum; Richard F. | Bryant; Robert G. Fox; Robert L. Jalink; Antony Jr. Rohrbach; Wayne W. Simpson; Joycelyn O. Thin layer composite unimorph ferroelectric driver and sensor | () US6630894 | 2000 | Control Self-powered | Boyd; Clark Davis | Face; Bradbury R. Face; Samuel A. Jr. Self-Powered switching device | () US6812594 | 2001 | Control Self-powered | Face; Bradbury R. | Boyd; Clark Davis Self-powered trainable switching network | () US7084529 | 2002 | Control Self-powered | Face; Bradbury R. | Boyd; Clark Davis Rogers; Glenn F. Jr. Thomas; Gregory P. Self-powered switch initiation system | () US7126497 | 2004 | Control Self-powered | Face; Bradbury R. | Carazo; Alfredo Vazquez Rogers; Glenn F. Jr. Thomas; Gregory P. Self-powered switch initiation system | () US7161276 | 2004 | Control Self-powered | Face; Bradbury R. | Self-powered, electronic keyed, multifunction switching system | () US7692559 | 2006 | Control Self-powered | Face; Bradbury R. | Carazo; Alfredo Vazquez Rogers; Glenn F. Jr. Thomas; Gregory Self-powered switch initiation system | () awnings | | Awnings for RVs
| US5636675 | 1997 | Awnings | Baka | Malott Shifting roll awning assembly with stowable support arms | (White Consolidated Industries, Inc.) Camper Awning
US5035253 | 1991 | Awnings | Bortles | Tent canopy rain awning | Tent Awning
bearings | | Bearings
| US5302874 | 1994 | Bearings Magnetic | Pinkerton | Magnetic bearing and method utilizing movable closed conductive loops
| bicycle | | Bicycle Stuff
| US3861227 | 1972 | Bicycle Transmission | Hunt, Guilbert M. | Variable Ratio Drive Mechanism for Bicycles | (I have a vintage bycycle that has one of these. I love it! It was mabe by Tokheim, the guys who make gasoline pumps, and called the "Tokheim Gear-Maker".) Gear-Maker
brayton | | Brayton Engines
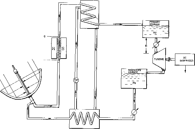
| US4189922 | 1980 | Brayton Solar | Bellofatto | Converting solar energy into electric power | Solar Brayton
US4942736 | 1990 | Brayton Solar | Bronicki | Method of and apparatus for producing power from solar energy | Solar Turbine
US5448889 | 1995 | Brayton Solar | Bronicki | Method of and apparatus for producing power using compressed air | Solar Turbine
US4683872 | 1987 | Brayton Solar | Fricker | Receiver for solar energy | Solar Turbine
US4262484 | 1981 | Brayton Solar | Jubb | Stansbury Gas turbine engine power plant using solar energy as a heat source | Solar Turbine
US4172491 | 1979 | Brayton Solar | Rice | Method of more efficiently operating a heat storage-heat exchange system | Solar Engine
candles | | Candles
| US5078591 | 1992 | Candles | Despres | Candle having thermal response
| US4320575 | 1982 | Candles Molding | Karlsson | Apparatus for manufacturing candles
| US4022862 | 1977 | Candles Molding | McBride | Glenn Cooper Method of molding an article in an expansible mold and removing the article from the mold
| US5353827 | 1994 | Candles Paste | Bouchard | Lafrance Perrault Process for producing pasty paraffin
| US4017231 | 1977 | Candles Powder | Karlsson | Device on apparatus for pressing power or granules into candles
| US4054636 | 1977 | Candles Powder | Menig | Method of making a composite candle with powdered wax core
| US3702495 | 1972 | Candles Powder | Renoe | Method of producing compression molded candles
| US4291458 | 1981 | Candles Wicking | Flinn | Apparatus and method for installing wicking in candles
| US3964858 | 1976 | Candles Wicking | Marik | Automatic candle-wicking machine
| compressor | | Compressors
| US4242878 | 1981 | Compressor | Brinkerhoff | Isothermal compressor apparatus and method | Isothermal Compressor
US4027993 | 1977 | Compressor | Wolff | Method and apparatus for compressing vaporous or gaseous fluids isothermally
| rollingpiston | | Compressor Rolling Piston (sometimes called "Sliding Abutement")
| US4975031 | 1990 | Compressor Rolling Piston | Bagepalli | Imam Rotary compressor with compliant impact surfaces | Rolling Piston
US4332534 | 1982 | Compressor Rolling Piston | Becker | Membrane pump with tiltable rolling piston pressing the membrane | Rolling Piston
US5529469 | 1996 | Compressor Rolling Piston | Bushnell | Swidowski Vane hole cover for rotary compressor
| US5226797 | 1993 | Compressor Rolling Piston | Da Costa; Caio Mario Franco | Rolling piston compressor with defined dimension ratios for the rolling piston
| US5007813 | 1991 | Compressor Rolling Piston | Da Costa; Caio Mario Franco | Rotary rolling piston compressor with fixed vane having a relieved incline section
| US5244366 | 1993 | Compressor Rolling Piston | Delmotte | Rolling piston compressor, and a cylinder therefor
| US3942414 | 1976 | Compressor Rolling Piston | Eddy | Hydraulic device | ( This motor has a plurality of expansion elements strung in series.) Multiple Lobes
US4580957 | 1986 | Compressor Rolling Piston | Fickelscher | Schabert Rotary fluid-flow machine with thin-walled annular piston | ( Check out the slider/valve assembly in figure 5. ) US5322424 | 1994 | Compressor Rolling Piston | Fujio | Two stage gas compressor
| US4452570 | 1984 | Compressor Rolling Piston | Fujisaki | Chu Multiple cylinder rotary compressor
| US3056542 | 1982 | Compressor Rolling Piston | Galin; R. | REFRIGERATING APPARATUS
| US5616019 | 1997 | Compressor Rolling Piston | Hattori | Futamura Saito Ozu Rolling piston type expansion machine |
US5775883 | 1998 | Compressor Rolling Piston | Hattori | Ozu Saito Morishima Otaka Futamura Rolling-piston expander apparatus |
US4558993 | 1985 | Compressor Rolling Piston | Hori | Hirano Kojima Yuda Rotary compressor with capacity modulation
| US5667372 | 1997 | Compressor Rolling Piston | Hwang | Shin Rolling piston rotary compressor formed with lubrication grooves
| US4669963 | 1987 | Compressor Rolling Piston | Ishihara | Takei Hattori Okazaki Rolling piston type rotary machine
| US4793780 | 1988 | Compressor Rolling Piston | Ishihara | Takei Hattori Okazaki Rolling piston type rotary machine with discharge passage in vane
| US4537567 | 1985 | Compressor Rolling Piston | Kawaguchi; Susumu | Morinushi; Ken Rolling piston type compressor
| US4676726 | 1987 | Compressor Rolling Piston | Kawaguchi; Susumu | Hirahara; Takuho Nakane; Kazuhiro Ueda; Sei Rotary compressor
| US4983108 | 1991 | Compressor Rolling Piston | Kawaguchi | Shirafuji Maeyama Sugita Yamamoto Low pressure container type rolling piston compressor with lubrication channel in the end plate
| US4507064 | 1985 | Compressor Rolling Piston | Kocher | Szymaszek Nikolaus Rotary gas compressor having rolling pistons
| US5322424 | 1994 | Compressor Rolling Piston | Matsuda | Inagaki Ogawa Sasaya Rolling piston compressor
| US5522235 | 1996 | Compressor Rolling Piston | Matsuoka | Yamazaki Tezuka Mochizuki Tanabe Reversible rotary compressor and reversible refrigerating cycle
| US4714414 | 1987 | Compressor Rolling Piston | Miller | Plural-stage gas compressor
| US5326233 | 1994 | Compressor Rolling Piston | Mochizuki | Kawaguchi Sakai Sato Maeyama Enclosed motor compressor of a two cylinder type
| US4427351 | 1984 | Compressor Rolling Piston | Sano; Kiyoshi | Rotary compressor with noise reducing space adjacent the discharge port
| US4397618 | 1983 | Compressor Rolling Piston | Stenzel | Rolling piston compressor with locking device for the separating slide | Modulated Rolling Piston
US4598559 | 1986 | Compressor Rolling Piston | Tomayko | Pandeya Reversible fixed vane rotary compressor having a reversing disk which carries the suction port
| | concentrator | | Solar Concentrators
| | Concentrator | Dish US2460482 | 1945 | Concentrator Dish | Abbot; | Charles Greeley Solar Heat Collector | (Dish on a Tripod mount) Tripod Mount
US4170985 | 1979 | Concentrator Dish | Authier | Solar Energy Collector | (Spherical Bowl type collector.) Spherical Bowl
US4011854 | 1976 | Concentrator Dish | Brantley; Lott W. | Lawson; Billy D. Mount for continuously orienting a collector dish in a system adapted to Perform Both Diurnal And Seasonal Solar Tracking | (While designed for a dish, this cool "Z Shaped Declinator Mechanism" is well suited for any direct solar tracked application, especially for Tripod Mounts as the main Polar Axis is supported at both ends. This device can also be used with heliostats.) Declinator for Tripod Mount
US811274 | 1904 | Concentrator Dish | Cartier; Albert | Solar Furnace | (A really big dish on a dual axis Lazy Susan or Hinge mount. A flat plate version is also described.) Dish on Lazy Susan
US4111184 | 1978 | Concentrator Dish | Fletcher; James C. | Perkins; Gerald S. Sun tracking solar energy collector | (A dish is moved about a stationary receiver by means of tracks.) Swinging Dish
US4395581 | 1983 | Concentrator Dish | Girard | Concave mirror constituted by a plurality of plane facets and solar generator comprising such a mirror | Big Dish
US4126123 | 1978 | Concentrator Dish | Hall | Solar energy collector including a weightless balloon with sun tracking means | (Inflatable.) Balloon Dish
US6284968 | 2000 | Concentrator Dish | Niesyn; Joseph Z. | Solar-tracking system | (Clockwork driven tracker perportedly capable of folowing the sun with constant speed drive and gearing only. However, this can't work properly as the sun may be as much as 15 minutes of time in error. This error is not a simple harmonic motion.) Dish
US5758938 | 1998 | Concentrator Dish | Osterwisch | Solar concentrator elevational drive mechanism | (Dish used with Stirling Thermal Motors' solar stirling engine) Big Stirling Dish
US4237868 | 1980 | Concentrator Dish | Overton | Solar heating balloon | (Inflatable Tethered Balloon Solar Collector.) Balloon
US820127 | 1905 | Concentrator Dish | Pope; Charles Henry | Apparatus For The Utilizatson Of Solar Heat | (Dishes and Troughs. Half a dish, what's the point?) Half a Dish
US5325844 | 1994 | Concentrator Dish | Rogers | Borton Durnin Lightweight, distributed force, two-axis tracking, solar radiation collector structures | (One axis is polar and the other is heliostatic, or in another variation it is a receiver axis heliostat Power Kinetics, Inc.) Dish/Heliostat
US6691701 | 2002 | Concentrator Dish | Roth; Karl Frederic | <karl@sunillumination.com> Modular solar radiation collection and distribution system | (See: Davis (1892) or Stiles (1998). Solartech) Heliostat Mechanism
US4608964 | 1986 | Concentrator Dish | Russo | Tension solar mirror |
US5529054 | 1996 | Concentrator Dish | Shoen | Solar energy concentrator and collector system and associated method | (Casegrainian optics. Its also an example of a Receiver Axis Heliostat.) Receiver Axis Heliostat and Casegrainian Dish
US4333446 | 1982 | Concentrator Dish | Smyth | Solar concentrator | (Based on a geodesic dome structure) Dish in a Dome
US4535961 | 1985 | Concentrator Dish | Sobczak; Isidore F. | Cleveland; William C. Pons; Robert L. Lightweight azimuth/elevation mount | Dish
US4342501 | 1982 | Concentrator Dish | U-Joint Solomon; Murray | Radiant energy collector with focal point between the plane of the frame and earth | (Tilt and rotate effected by 2 extensible actuators based on the U-joint mechanism. Similar to the Gueguen (1976) dish and Sallis (1990) heliostat.) Lighting Dish
US6128135 | 1998 | Concentrator Dish | Stiles; Michael R. | Kinney; Laurence F. Three-reflection collection system for solar and lunar radiant energy | (Forget the Cassegrainian dish, look at the pantogram half angle mechanism. This is very similar to that used by Silbermann on his clockwork driven heliostats of the early 1800s. Its also an example of a Receiver Axis Heliostat.) Receiver Axis Heliostat Mechanism
US4423926 | 1982 | Concentrator Dish | Stolpin; Roger M. | Parabolic collector | (Dish panels snap together similar to the way the hinge parts work on clear plastic polystyrene boxes. I would think magnets would also work.) Snap Together Dish
US5893360 | 1999 | Concentrator Dish | Stoumen | Stoumen Inflatable solar oven | (This sounds like a half silvered mylar balloon) Solar Cooker
US3643648 | 1970 | Concentrator Dish | Weiss | SOLAR HEATING DEVICES | (Formed similar to a Japanese fan.) Solar Cooker
US4116541 | 1978 | Concentrator Dish | Weiss | Parabolic reflector with vary transverse width | (Formed from crossed reflective sections. These flower petal like sections are bent into shape. The specific shape of the petals directly form a parabolic curve. Equations are given to develop the petal shape.) Petal Shapped Dish
US4568945 | 1986 | Concentrator Dish | Winegard; John R. | Cowan; Keith B. Satellite dish antenna apparatus | (Winegard Company) Satellite Dish
US4171876 | 1979 | Concentrator Dish | Wood; Douglas E. | Sunflower <fox@harbornet.com> Apparatus for supporting large-dimension curved reflectors | Many Faceted Dish
US4295709 | 1981 | Concentrator Dish | Wood; Douglas E. | Sunflower <fox@harbornet.com> Parabolic reflector comprising a plurality of triangular reflecting members forming a reflecting surface supported by a framework having a particular geometric pattern | Many Faceted Dish
US4372772 | 1983 | Concentrator Dish | Wood; Douglas E. | Sunflower <fox@harbornet.com> Parabolic reflector comprising a plurality of triangular reflecting members forming a reflecting surface supported by a framework having a particular geometric pattern | Many Faceted Dish
US4491388 | 1985 | Concentrator Dish | Wood; Douglas E. | Sunflower <fox@harbornet.com> Support carriage for a solar concentrator | Many Faceted Dish
US6485152 | 2001 | Concentrator Dish | Wood; Douglas E. | Sunflower <fox@harbornet.com> Matrix solar dish | Back Side How it's put togather
| Concentrator | DishFresnel US4789921 | 1988 | Concentrator Dish Fresnel | Aho; Kenneth A. | Cone shaped Fresnel reflector | (From 3M and lives in Chisago City, MN) Cone Dish
US4999059 | 1991 | Concentrator Dish Fresnel | Bagno | Universal solar concentrator panel | (Combination of multiple flat mirrors reflecting light onto a receiver. The receiver uses concentrator PV cells and water cooled heat output. Similar to Calver (1889).) Fresnel Dish
US4552126 | 1985 | Concentrator Dish Fresnel | Boyd | Radiation concentrator | (A Fresnel mirror made from an inflatable balloon with concentric mirror segments on the upper and lower surfaces. The combination of the two mirrored surfaces focuses solar energy behind the array. The combination reminds me of Gregorian telescope optics. This is really dumb, first the reflectors block half the light then they spread the light out reducing the concentration.) Fresnel Dish
US412724 | 1889 | Concentrator Dish Fresnel | Calver; William | Solar Apparatus | ((1889)) Fresnel Dish
US4906070 | 1998 | Concentrator Dish Fresnel | Cobb, Jr.; Sanford | Totally internally reflecting thin, flexible film | (Plastic material ruled with internal grooves to form parallel roof prisms. Forms 2/3rds of a retroreflector) 3M and he lives in St. Mary's Point, MN) Plastic Sheet
US1951404 | 1934 | Concentrator Dish Fresnel | Goddard; Robert H. | Focusing Mirror and Directing Mechanism Therefor | (Ya, this is the liquid fuel rocket guy. He lived in Worcester, MA. The dish has rotating mirror strips that can be bent to adjust the focus.) Fresnel Dish
US6959993 | 2005 | Concentrator Dish Fresnel | Gross; William | Luconi; Gregg Zsolnay; Denes Solar concentrator array with individually adjustable elements | (Fresnel Dish with adjustable 3 point link mechanism) 3 Link Mechanism
US4136674 | 1979 | Concentrator Dish Fresnel | Korr | System for solar radiation energy collection and conversion | (Looks like an "arc heliostat" floating in a moat of water. Dish/Arc Heliostat
US4561425 | 1985 | Concentrator Dish Fresnel | Long; John B. | Ware; Robert R. Solar cooker | (A Fresnel mirror composed of concentric rings of conical mirror segments focusing in front of the array) Fresnel Dish
US4716258 | 1987 | Concentrator Dish Fresnel | Murtha; R. Michael | <murtha2@juno.com> Stamped concentrators supporting photovoltaic assemblies | PV Concentrator
US4566432 | 1986 | Concentrator Dish Fresnel | Sobczak | Cleveland Pons Method for mass producing solar radiation reflectors | Big Stirling Dish
US4457297 | 1984 | Concentrator Dish Fresnel | Sobczak | Cleveland Pons Modular solar concentrator | Little Stirling Dish
US4350412 | 1982 | Concentrator Dish Fresnel | Steenblik; Richard A. | Ho; Dar-Veig Fresnel spiral reflector and method for making same | (A unique method of making a pseudo-parabolic reflector dish by cutting a spiral out of flat sheet reflective stock and winding it up to form the curved shape needed to concentrate solar energy.) Spiral Fresnel Dish Photograph
US4784700 | 1988 | Concentrator Dish Fresnel | Stern | Cornwall Kaincz Mildice Point focus solar concentrator using reflector strips of various geometries to form primary and secondary reflectors | Fresnel Dish
US5982481 | 1999 | Concentrator Dish Fresnel | Stone; Kenneth | Blackmon; James Alignment system and method for dish concentrators | (Alignment and focusing method. The system uses a light source and detector at a position about 2 times the focal distance. A computer operates the light source and adjusts the individual facits.) Big Stirling Dish
US4347834 | 1982 | Concentrator Dish Fresnel | York | Variable entropy solar energy harvester | (A Fresnel mirror composed of concentric rings of paraboloidal mirror segments focusing behind the array) Fresnel Dish
| Concentrator | FiberOptics US4275950 | 1981 | Concentrator Fiber Optics | Meyer; Stanley A. | Light-guide lens | (Ya, the wacco run a car on water guy) Wierd
| Concentrator | Heliostat US3924604 | 1975 | Concentrator Heliostat | Anderson; Donald E. | Solar energy conversion system | (Power Tower. Guy from Northfield, MN. Looks like Solar II with air heat transport. Describes mirrors moved with cables.) Power Plant
US5347402 | 1992 | Concentrator Heliostat | Arbogast; Porter | Multiple mirror assembly for solar collector | (Method of removing and stowing mirrors for protection in storms) Linked Mirrors
US4056313 | 1977 | Concentrator Heliostat | Arbogast; Porter R. | Multiple mirrored apparatus utilizing solar energy | (Technically the linkage mechanism doesn't work properly. See the Bunch (1978) patent for a parallelogram linkage that is correct.) Linked Mirrors
US4398802 | 1983 | Concentrator Heliostat | Auger; Henri | Acloque; Jean-Pierre Solar mirror having contiguous reflecting panels mounted on a movable frame | (Interesting method of forming and controlling the curve in strips of mirrors.) Mirror Strip Heliostat
US1938003 | 1930 | Concentrator Heliostat | Arthuys; Jacques Marie | Self Adjusting Sunlight Reflector | (Inline Heliostat controlled by interesting thermal/pneumatic mercury switches.) Thermal/Pneumatic Mercury Switch
US2135997 | 1936 | Concentrator Heliostat | Arthuys; Jacques Marie | Automatic Heliostat | (Inline Heliostat controlled by interesting thermal/pneumatic differential mercury switches.) Thermal/Pneumatic Differential Mercury Switch
US4832001 | 1987 | Concentrator Heliostat | Baer; Stephen C. | Lightweight solar panel support | (Heliostat elements supported on cables. Zomeworks Similar to the Dolan (1984) patent.) ZomeworksUS5417052 | 1993 | Concentrator Heliostat | Bharathan; Desikan | Bohn; Mark S. Williams; Thomas A. Hybrid solar central receiver for combined cycle power plant | (Looks like Solar II with air heat transport.) Hybrid Solar Power Plant
US4227513 | 1980 | Concentrator Heliostat | Blake; Floyd A. | Northrup, Jr.; Lynn L. Solar system employing ground level heliostats and solar collectors | (Heliostat and inline optical tracker) Inline Tracker
US4276872 | 1981 | Concentrator Heliostat | Blake; Floyd A. | Northrup, Jr.; Lynn L. Solar system employing ground level heliostats and solar collectors | (Heliostat and inline optical tracker) Inline Tracker
US4149777 | 1977 | Concentrator Heliostat | Bunch; Jesse C. | Radiation concentrating system | (Heliostat beveled gear bisector angle mechanism) Beveled Gear Angle Bisector bunch1 Interior Gear Angle Bisector
US4110009 | 1978 | Concentrator Heliostat | Bunch; Jesse C. | Heliostat apparatus | (Heliostat actuation scheme that uses parallelogram linkages) Heliostat Array bunch2
US4218114 | 1980 | Concentrator Heliostat | Bunch; Jesse C. | Heliostat apparatus | (Heliostat actuation scheme that uses parallelogram linkages) Linked Mirrors bunch3
US260657 | 1882 | Concentrator Heliostat | Calver; William | Method Of And Means For Utilizing The Rays Of The Sun | (Arc Heliostat (1882) Arc Heliostat
US291491 | 1884 | Concentrator Heliostat | Calver; William | Means For Utilizing The Rays Of The Sun | (Arc Heliostat (1884) Arc Heliostat
US549765 | 1895 | Concentrator Heliostat | Calver; William | Apparatus For Making Gas | (Arc Heliostat (1895) US603317 | 1898 | Concentrator Heliostat | Calver; William | Solar Apparatus | (Arc Heliostat (1898) US3906927 | 1975 | Concentrator Heliostat | Caplan; Harry W. | Solar-thermal power system employing adjustable curvature reflective panels and method of adjusting reflective panel curvature | (Heliostat with mechanically adjustable flat mirrors. The tracker uses inline sensors) Inline Tracker
US4192289 | 1980 | Concentrator Heliostat | Clark; David J. | Solar heat collection system | (Vacuum formed concave heliostat mirror. Receiver axis tracker using a cable over pullys.) Heliostat
US8344305 | 2010 | Concentrator Heliostat | Convery; Mark R. | System and method for aligning heliostats of a solar power tower | Heliostat Control
US608755 | 1897 | Concentrator Heliostat | Cottle; Henry F. | Apparatus For Storing And Using Solar Heat | (Arc Heliostat on tracks (1897) Arc Heliostat
US507999 | 1892 | Concentrator Heliostat | Davis; John W. | APPARATUS FOR LIGHTING BUILDINGS | (A Cassegrainian Dish and Heliostat combination for reflecting vertically down into a building for lighting purposes. Very sinilar to another by Roth (2002).) Heliostat Lighting
US4129360 | 1978 | Concentrator Heliostat | Deflandre; Jean | Matarasso; Pierre Traisnel; Jean-Pierre Heliostats | (A Hinge type heliostat mechanism that tracks similar to a TPole although much stronger than a TPole. See Sayre (1980).) Hinge
US4466423 | 1984 | Concentrator Heliostat | Dolan; James E. | Sands; Timothy D. Rim-drive cable-aligned heliostat collector system | (Heliostat mirrors suspended on cables in linear rows. The mirrors are stowable for wether protection.) Mirrors on Wires
US3466119 | 1966 | Concentrator Heliostat | Francia; Giovanni | Multiple Mirrored Apparatus Utilizing Solar Heat | (True ganged mechanical heliostat. This looks very similar to the Gambey mechanical heliostat. Mirrors on Wires
US20050279953 | 2004 | Concentrator Heliostat | Gerst; Leo | Heliostat Alignment System | (A T-Pole mounted heliostat moved with linear actuators and controlled with a dual axis inline tracker. I doubt this patent will ever get issued because there was ample prior art. Leo's website. Even my version was done before 2004.) Inline Tracker
US4266179 | 1981 | Concentrator Heliostat | Hamm; James E. | Solar energy concentration system | Solar Furnace
US4063543 | 1977 | Concentrator Heliostat | Hedger; John Henry | Servo tracking apparatus | (Moves mirror by rocking mechanisms that tilt and rotate using linear actuators. My goofy tracker is similar to this.) Inline Tracker
WO2012125748 | WO2012125748 2012 | Concentrator Heliostat | Johnson; Richard L | Hines; Braden E Apparatus And Method For Pointing Light Sources | (The mirror is tilted and rotated with a pair of tethers. Thermata, now Solar Reserve, I think this is related to eSolar.) WO2012125751 | WO2012125751 2012 | Concentrator Heliostat | Hines; Braden E | Johnson; Richard L Apparatus And Method For Pointing Light Sources | (The mirror is tilted and rotated with a pair of tethers. Thermata, now Solar Reserve, I think this is related to eSolar.) US4110010 | 1978 | Concentrator Heliostat | Hilton; Richard D. | Ganged heliostat | (Technically the linkage mechanism doesn't work properly. Similar to the Arbogast (1977) problem. See the Bunch (1978) patent for a parallelogram linkage that is correct.) Removable Mirrors
US4509501 | 1985 | Concentrator Heliostat | Hunter; Larry D. | Solar energy collecting system using a primary reflector based on a pyramid structure | Triangular Heliostat
US5949594 | 1997 | Concentrator Heliostat | Iglseder; Heinrich | Arens-Fischer; Wolfgang Process for the generation of information in space | (Spaced based solar iluminated advertising) Space Advertising
US3905352 | 1975 | Concentrator Heliostat | John; Arnold | System For Collecting And Transferring Usable Solar Heat | (Arc Heliostat Arc Heliostat
US4365618 | 1982 | Concentrator Heliostat | Jones; Dedger | jones1 | Heliostatic solar energy conversion (Heliostat field that uses tilt only mirrors for altitude adjustment. The field of mirrors rotates about the central tower on tracks for azimuth adjustment. Plan Arc Heliostat with Tracked Mount
US4922088 | 1988 | Concentrator Heliostat | Kasuya; Satoshi | Automatic solar lighting apparatus having a solar following sensor | ("Receiver Axis" Lighting Heliostat similar to the Silbermann mechanical heliostats of the 1830's. It uses the pantograph bisector mechanism. It's a bit difficult to recognize the "Receiver Axis" function since the mirror moves in AZimuth ALTitude but its there. The receiver axis in this case is Vertically oriented. Note!! even though the mirror moves in AZ/ALT this must be called a "Receiver Axis" heliostat mount.) Lighting Heliostat
US8662877 | 2010 | Concentrator Heliostat | von Kries; Karl | System, method and apparatus for solar heated manufacturing | (A system for a thermal manufacturing system including a heliostat and a mold. von Kries is using an array of heliostats to heat Rotary Plastic Molding equipment. See: I won an ebay auction for 10 heliostats from von Kries's prototype heliostat array made by Light manufacturing is now making their own heliostats Solar Powered Manufacturing
US20140043705 | 2011 | Concentrator Heliostat | Lehmann; Alex Geoffrey | Toroidal heliostat | (Basically a Receiver Axis Heliostat. The mirror is activly or passivly warped to produce a Toroidal surface. I have described this variable focal length problem a number of times on the usenet as long ago as 2001, (probably earlier).) Receiver Axis Heliostat with Toroidal Concentration
US7207327 | 2004 | Concentrator Heliostat | Litwin; Robert Z. | Meister; Christopher D. Feedback control method for a heliostat | (Heliostat tracking sensor using Retro Reflectors, something similar to the manual heliostat optical sensor, by Martin Lades, we used on the heliostat array to send light up to the Kansas City Space Pirates, KCSP, space tether climber.) Heliostat Tracking Sensor using Retro Reflectors
US7000608 | 2002 | Concentrator Heliostat | Löschmann; Thomas | Solar energy system | (Heliostat array linked by cables.) Tracked Mount
US333769 | 1886 | Concentrator Heliostat | Mayer; Alfred M. | Heliostat | (A Galilean Telescope combined with a Type 1 Coelostat.) Telescopic Type 1 Coelostat
US4832002 | 1989 | Concentrator Heliostat | Medina; Oscar | Unified heliostat array | (A heliostat array for reflecting the rays of the sun upon a central collector. This is a neat example of a Receiver Axis Tracker. A cable over pulleys links them together. Please study this carefully, especially for small scale heliostats.) Heliostat
US4137897 | 1979 | Concentrator Heliostat | Moore; Walter T. | Unified array for collection and concentration of solar energy | (Heliostats built into buildings with conventional tower) Heliostat Buildings
US59438 | 1866 | Concentrator Heliostat | Morawetz; L. F. | Vertical Solar Camera | (An early Type 1 Coelostat heliostat.) Type 1 Coelostat
US5979438 | 1998 | Concentrator Heliostat | Nakamura; Katsushige | Sunlight collecting system | (Describes a secondary Gregorian mirror and a tertiary compound parabolic concentrator receiver, and inline tracker.) Heliostat Array Inline Tracker Tracker
US6231197 | 2001 | Concentrator Heliostat | Nakamura; Katsushige | Heliostat for sunlight collecting system | (Similar to the half angle gearing methods used in a receiver axis heliostat. In this case there are two half angle mechanisms, one for each axis of a TPole mount.) Heliostat
US6899096 | 2004 | Concentrator Heliostat | Nakamura; Katsushige | Autonomous heliostat | (Similar to a Silbermann mechanical heliostat. Except the half angle mechanism uses gear belts instead of Silbermann's rhombus mechanism.) Heliostat
US4586488 | 1986 | Concentrator Heliostat | Noto; Vincent H. | Reflective solar tracking system | (Half angle tracker employing gears. Similar to that describes to me by Jerimiah Chace. Receiver Axis Mount) Half angle tracker, single axis
US6227673 | 2001 | Concentrator Heliostat | O'Hara-Smith; Stephen C. | <info@sohara.org> Adjustable reflector | (Sohara, a Directable Mirror is an inexpensive panel approximately one meter square and a couple of inches thick. It is composed of a plurality of spheres bisected with a mirror. Steve O'Hara-Smith) Spheres
US509393 | 1893 | Concentrator Heliostat | Paine; Halbert E. | Solar Heater | (Arc Heliostat (1893)) Arc Heliostat
DE102010043790 | 2010 | Concentrator Heliostat | Páli; György János | Heliostat with associated receiving element | (Basically a Receiver Axis Heliostat. The mirror is composed of Fresnel mirror segments arranged as multiple rotatable slats. The segments in each slat are slanted to accomplish concentration with a fixed focal length in the plane 90 degrees to the Sun/Receiver line. The slats are rotated with a rather complicated mirror adjusting mechanism to accomplish concentration with a variable focal length in the plane of the Sun/Receiver line. I have described this variable focal length problem a number of times on the usenet as long ago as 2001, (probably earlier). This is an interesting method of doing this. This appears to be a rather complete all mechanical solution. (BTW, the simulated curved surface is close to a section of a Toroid, or Toroidal surface.)) Receiver Axis Heliostat with Toroidal Concentration
US5945961 | 1999 | Concentrator Heliostat | U-Joint Price; Russell E. | Gastonguay; Raymond J. Antenna dish system having constrained rotational movement | (Mechanical tracker based on the U-joint mechanism. Similar to the Sallis (1990) Heliostat and Solomon (1982) dish.) U-joint Mechanism
US5787878 | 1996 | Concentrator Heliostat | Ratliff Jr.; George D. | Solar concentrator | (Arc Heliostat with parking using tracks Arc Heliostat
US7380549 | 2006 | Concentrator Heliostat | Ratliff Jr.; George D. | Solar concentrator | (Arc Heliostat with parking using tracks. This version appears to be operated with cables. Arc Heliostat
US6897423 | 2002 | Concentrator Heliostat | Redler; Michael H. | < redlerm@yahoo.com> Rader; Dennis Self-powered intermittent moving light tracking device and method | (Escentially a Receiver Axis Heliostat Mount with Shadow Blocker sensor) Receiver Axis Mechanism using Chain & Sproket Receiver Axis Mechanism using Gears
US20110000478 | 2009 | Concentrator Heliostat | Reznik; Dan S. | Camera-based heliostat tracking controller | (Cameras looking back from the mirrors to see images of the sun and receiver. Controllers move the heliostat until the images coincide or merge. Reznik is now with eSolar See Zavodny) Camera based Heliostat control
US20090107485 | 2008 | Concentrator Heliostat | Reznik; Dan S. | Azarchs; Adam D. Csaszar; Ambrus Hartshorn; Matthew B. Calibration and tracking control of heliostats in a central tower receiver solar power plant | (Cameras looking back from the mirrors to see images of the sun and receiver. Controllers move the heliostat until the images coincide or merge. Reznik is now with eSolar See Zavodny) Camera based Heliostat control
US4122827 | 1977 | Concentrator Heliostat | Rhodes; William A. | Kinematic synchronous solar heliostat | (A kinematic solar heliostat for reflecting solar energy onto a fixed target which uses a single drive to position reflected solar energy onto such target during daytime hours at any latitude.) Polar Heliostat
US4402582 | 1982 | Concentrator Heliostat | Rhodes; William A. | Parasitic driven heliostat mirror declinator | (An automatic parasitically driven declinator for changing the tilt angle of the mirror of a heliostat to provide solar declination tracking by the heliostat.) Polar Heliostat
US4364183 | 1982 | Concentrator Heliostat | Rhodes; William A. | Heliostat-adjusting solar sight | (A solar sight having a scale calibrated in terms of solar declination angle and reflector angle.) Heliostat sight
US5325844 | 1994 | Concentrator Heliostat | Rogers; William E. | Borton; David N. Durnin; John E. Lightweight, distributed force, two-axis tracking, solar radiation collector structures | (One axis is polar and the other is heliostatic, or in another variation it is a receiver axis heliostat Power Kinetics, Inc.) Dish/Heliostat
US20060013001 | 2005 | Concentrator Heliostat | Roth; Karl Frederic | <karl@sunillumination.com> Reflectors for condensed light beam distribution | (Ok, this patent doesn't show it but he intends it to be a Cassegrainian dish and heliostat. Light is reflected along a horizontal beam with various mirrors picking off light for distribution to rooms. Solartech Escentially like Davis (1892) or Stiles (1998).) US4930493 | 1990 | Concentrator Heliostat | U-Joint Sallis; Daniel V. | Multi-lever rim-drive heliostat | (Unusual dual lever actuator based on the U-joint mechanism. Similar to the Gueguen (1976) dish and Solomon (1982) dish but much more elegant. Note, the actuator mechanism is similar to that of a Back Hoe which amplifies angular motion.) Really Neat Heliostat
US4209231 | 1980 | Concentrator Heliostat | Sayre; Robert K. | Heliostat assemblies | (A TPole type heliostat mechanism that looks similar to a Hinge although much stronger. See Deflandre (1978).) TPole
US4219729 | 1980 | Concentrator Heliostat | Smith; Otto J. M. | Method of aligning and locating the mirrors of a collector field with respect to a receptor tower | (Laser alignment of a field of mirrors) Iaser Heliostat Alignment
US4117682 | 1978 | Concentrator Heliostat | Smith; Otto J. M. | Solar collector system | (Solar Power Tower and receiver and mirror field strategies.) Solar Power Plant
US4102326 | 1977 | Concentrator Heliostat | Sommer; Warren T. | Central receiver solar collector using mechanically linked mirrors | Linked Mirrors
USRE30960 | 1982 | Concentrator Heliostat | Sommer; Warren T. | Central receiver solar collector using mechanically linked mirrors | Linked Mirrors
US3981151 | 1976 | Concentrator Heliostat | St. Clair | Use of solar energy heat gathering and storing systems to increase farm crop yields | (Heliostat to store solar energy for later use in agricultural ilumination) Agricultural Heliostat
US4266530 | 1981 | Concentrator Heliostat | Steadman; Robert W. | Sun ray tracker | (Arc Heliostat with Mirrors moved and tilted in circular tracks. Arc Heliostat
US4251135 | 1981 | Concentrator Heliostat | Stone; Douglas C. | Solar reflector | (Tensioned triangular membrain reflector.) Heliostat
US2712772 | 1953 | Concentrator Heliostat | Trombe; Felix | Self-Regulating Automatic Heliostat Reflecting Mirror Device | (Inline Heliostat. Trombe of the Trombe wall fame.) Inline Heliostat
US4264145 | 1981 | Concentrator Heliostat | Urruela; Jose R. | Invertible apparatus for the reflection of solar radiation | (This appears to be similar to a "Back Hoe" mechanism which can convert linear motion to rotary motion greater than 180 degrees) Heliostat
US4488779 | 1984 | Concentrator Heliostat | Varner; Kevin | Lightweight heliostat system | (Varner is from Ogilvie, MN.) Po Lee's YouTube video Heliostat
US1632254 | 1926 | Concentrator Heliostat | Vinogbadov; Eugene | Window Lighting system | (Similar to a Type 1 Coelostat and sends light down a shaft and into windows.) Lighting Heliostat
US6025583 | 1998 | Concentrator Heliostat | Whitehead; Lorne A. | Concentrating heliostat for solar lighting applications | (Escentially a Fresnel optical lens that reedirects the sunlight to a receiver. Tracking of the sun is accomplished by moving a plastic film from one roller to another. The film contains a plurality of optical lenses.) Heliostat on a Roll
US4798949 | 1986 | Concentrator Heliostat | Wilcox; William W. | Kudija; Charles T. Linear actuated optical concentrator | (This patent is the basis of a lighting heliostat I am working on) Heliostat
US5862799 | 1997 | Concentrator Heliostat | Yogev; Amnon | Krupkin; Vladimir Control of a heliostat field in a solar energy plant | (Uses Gregorian and Cassigranian optics.) Heliostat Shadow Tracker
US7203004 | 2004 | Concentrator Heliostat | Zhang; Yaoming | Directed reflection light collecting device with planar reflectors | (AZimuth ALTitude mount with stacked mirrors. Escentially a Receiver Axis Heliostat Mount with Shadow Blocker sensor.) Receiver Axis Heliostat
US7994459 | 2009 | Concentrator Heliostat | Zavodny; Maximilian | Reznik; Dan S. Forte; Michael James Camera-based heliostat calibration with artificial light sources | (This is eSolar's method of tracking and calibrating their heliostats using cameras mounted around the array field.) Heliostat Calibration
| Concentrator | Holographic US5517339 | 1994 | Concentrator Holographic | Riccobono; Juanita R. | Ludman; Jaques E. Method of manufacturing high efficiency, broad bandwidth, volume holographic elements and solar concentrators for use therewith | Holographic Concentrators
US5877874 | 1997 | Concentrator Holographic | Rosenberg; Glenn A. | Device for concentrating optical radiation | (Using holograms and passive solar tracking. Operates in a similar manner to Luminescent Concentrators but with the advantage of utilizing a wider spectrum.) Holographic Tracker
US4291679 | 1980 | Concentrator Hyperbolic Paraboloid | Kersavage; Joseph A. | Structural solar collector | (Hypar Roof with a movable tubular parabolic receiver.) Hyperbolic Paraboloid
US4538886 | 1985 | Concentrator Hyperbolic Paraboloid | Townsend; Donald W. | Routery; Edward E. Circular arc solar concentrator | (Hypar Roof using essentially stretched membranes and Sail technology.) Hyperbolic Paraboloid Hyperbolic Paraboloid
| Concentrator | Inflatable US4318394 | 1982 | Concentrator Inflatable | Alexander; William C. | Solar energy concentrator | (I don't understand how it works.) Inflatable Trough
US4552126 | 1984 | Concentrator Inflatable | Boyd; John O. | Radiation concentrator | (A Fresnel mirror made from an inflatable balloon with concentric mirror segments on the upper and lower surfaces. The combination of the two mirrored surfaces focuses solar energy behind the array. The combination reminds me of Gregorian telescope optics) Fresnel
US4182307 | 1980 | Concentrator Inflatable | Brindle; Dannie K. | Shanfelt; Donald Y. Inflatable solar energy collector | (A kind of inflatable greenhouse with a flat plate absorber.) Flat Plate
US4160443 | 1979 | Concentrator Inflatable | Brindle; Dannie K. | Shanfelt; Donald Y. Kiserl Dennis D. Armagast; David W. Lynch; Patrick J. Inflatable solar heat collector | (A kind of inflatable greenhouse with a flat plate absorber.) Flat Plate
US4203425 | 1980 | Concentrator Inflatable | Clark; Dana A. | Inflatable solar collector | (A kind of inflatable watterbed with a flat plate absorber.) Flat Plate
US4126123 | 1978 | Concentrator Inflatable | Hall; Frederick F. | Solar energy collector including a weightless balloon with sun tracking means | (Inflatable.) Balloon Dish
US4432342 | 1984 | Concentrator Inflatable | Lucas; Jean | Sylla; Lancine Inflatable solar collector | (Trough) Casegranian Trough
US4237868 | 1980 | Concentrator Inflatable | Overton; Charlie N. | Solar heating balloon | (Inflatable Tethered Balloon Solar Collector.) Balloon
US5893360 | 1997 | Concentrator Inflatable | Stoumen; O'Malley O. | Stoumen; Jonathan A. Inflatable solar oven | (This sounds like a half silvered mylar balloon) Solar Cooker
| Concentrator | Involute US4610518 | 1984 | Concentrator Involute | Clegg; John E. | Involute beam concentrator | Involute
| Concentrator | LensFresnel US5870233 | 1997 | Concentrator Lens Fresnel | Benz; Volker | Berkenkopf; Martin Fischer; Udo Lorenz; Hans Meier-Kaiser; Michael Process for manufacture of fresnel lenses | How to make
US4257401 | 1981 | Concentrator Lens Fresnel | Daniels; Ronald M. | Solar heat collector | (A Fresnel primary lens focusing on an optical fiber through a secondary flat mirror. Basically folded to 1/2 the length if no back side mirror was used.) Fiber Optic Concentrator
US5505789 | 1994 | Concentrator Lens Fresnel | Fraas; Lewis M. | O'Neill; Mark J. Line-focus photovoltaic module using solid optical secondaries for improved radiation resistance | (Entech Inc.) PV Concentrator
US5344497 | 1993 | Concentrator Lens Fresnel | Fraas; Lewis M. | O'Neill; Mark J. Line-focus photovoltaic module using stacked tandem-cells | PV Concentrator
US5648873 | 1996 | Concentrator Lens Fresnel | Jaster; Paul A | O'Neill; Mark Joseph Passive solar collector | (3M) PV Concentrator
US5578139 | 1995 | Concentrator Lens Fresnel | Jones; P. Alan | Harvey; T. Jeffrey Fraser, Allister F. Murphy; David M. Stowable and deployable solar energy concentrator with fresnel lenses | (Linear Fresnel lens onto a linear array of PV cells) PV Concentrator
US3991741 | 1976 | Concentrator Lens Fresnel | Northrup; Leonard L. | O'Neill; Mark J. Roof-lens solar collector | Built Into the Roof
US4545366 | 1984 | Concentrator Lens Fresnel | O'Neill; Mark J. | Bi-focussed solar energy concentrator | (Entech Inc.) PV Concentrator
US4711972 | 1986 | Concentrator Lens Fresnel | O'Neill; Mark J. | Photovoltaic cell cover for use with a primary optical concentrator in a solar energy collector | (Prismatic cover for concentrator PV cells Entech Inc.) Prismatic
US4069812 | 1976 | Concentrator Lens Fresnel | O'Neill; Mark J. | Solar concentrator and energy collection system | Liquid Heater
US4672949 | 1985 | Concentrator Lens Fresnel | O'Neill; Mark J. | Solar energy collector having an improved thermal receiver | (Entech Inc.) Liquid Heater
| Concentrator | Luminescent US4812013 | 1979 | Concentrator Luminescent | Aurouet | Blumenfeld Bourdinaud Calve Cavan Meyer Thevenin Process for utilizing light radiation with the aid of fluorescent optical fibres and functional devices and apparatus using said process | (This is not a concentrator but is Luminescent Technology.) Luminescent Technology
US4222880 | 1980 | Concentrator Luminescent | Baur | Greubel Knauer Krueger Arrangement for optical transmission of communications | (This is not a concentrator but is Luminescent Technology.) Luminescent Technology
US4135537 | 1979 | Concentrator Luminescent | Blieden | MacDonald Light collector | Luminescent
US4153813 | 1979 | Concentrator Luminescent | Blieden | Sill Luminescent solar collector | Luminescent
US4357486 | 1982 | Concentrator Luminescent | Blieden | Yerkes Luminescent solar collector | Luminescent
US4188238 | 1980 | Concentrator Luminescent | Boling | Generation of electrical energy from sunlight, and apparatus | Linear Lens
US4164432 | 1979 | Concentrator Luminescent | Boling | Luminescent solar collector structure | Luminescent
US4188239 | 1980 | Concentrator Luminescent | Boling | Luminescent solar collector structure | Luminescent
US4190465 | 1980 | Concentrator Luminescent | Boling | Luminescent solar collector structure | Luminescent
US4733929 | 1988 | Concentrator Luminescent | Brown | Diffuser fiber incident energy concentrator and method of using same | Luminescent Fiber
US4884860 | 1989 | Concentrator Luminescent | Brown | Linear lens and method for concentrating radiant energy and multiplying phosphor luminance output intensity | Linear Lens
US4799748 | 1989 | Concentrator Luminescent | Brown | Slab-diffuser fiber incident energy concentrator | Luminescent Fiber
US5816238 | 1998 | Concentrator Luminescent | Burns | Pavelka Durable fluorescent solar collectors | (3M) PV Concentrator
US4144097 | 1979 | Concentrator Luminescent | Chambers | Wohlmut Luminescent solar collector | PV Concentrator
US4127425 | 1978 | Concentrator Luminescent | Chambers | Luminescent solar collector | PV Concentrator
US4544496 | 1985 | Concentrator Luminescent | Claussen | Harnisch Light-collecting system using coumarin derivatives as energy converters | (No pictures) US3934148 | 1976 | Concentrator Luminescent | Collins | Fluorescent plastic controlled direction lamp | Lamp
US4175980 | 1979 | Concentrator Luminescent | Davis | Sill Yerkes Luminescent solar collector | (Hybrid Luminescent and Thermal panel.) Luminescent Thermal
US4110123 | 1978 | Concentrator Luminescent | Goetzberger | Greubel Apparatus for converting light energy into electrical energy | 3 Color Luminescent
US5500054 | 1996 | Concentrator Luminescent | Goldstein | Superemissive light pipes and photovoltaic systems including same | Thermal Luminescent
US3912931 | 1975 | Concentrator Luminescent | Gravisse | Photovoltaic device with luminescent layers of differing composition | Multilayers for Light Color Conversion
US4324946 | 1982 | Concentrator Luminescent | Gravisse | Solar radiation concentrator | 2 Layer
US5431742 | 1995 | Concentrator Luminescent | Kleinerman | Luminescent solar concentrators using light amplification processes | (Luminescent laser iluminator.) Laser
US4149902 | 1979 | Concentrator Luminescent | Mauer | Turechek Fluorescent solar energy concentrato | PV Concentrator
US4298802 | 1981 | Concentrator Luminescent | Quella | Pape Method and device for collecting light utilizing a light trap | PV Concentrator
US4367367 | 1983 | Concentrator Luminescent | Reisfeld | Neuman Collector for solar energy | PV Concentrator
US4488047 | 1984 | Concentrator Luminescent | Thomas | High efficiency multiple layer, all solid-state luminescent solar concentrator | PV Concentrator
US4155371 | 1979 | Concentrator Luminescent | Wohlmut | Yerkes Luminescent solar collector | PV Concentrator
US4159212 | 1979 | Concentrator Luminescent | Yerkes | Luminescent solar collector | Fiber Optic
US4425907 | 1984 | Concentrator Luminescent | Younghouse | Reflector-coupled fluorescent solar collector | Fiber Optic
US4227939 | 1980 | Concentrator Luminescent | Zewail | Batchelder Luminescent solar energy concentrator devices | Shell
| Concentrator | NonImagingOptics US4327969 | 1982 | Concentrator Non Imaging Optics | Giutronich | Mills Radiation concentrator and distributor | CPC
US4275950 | 1981 | Concentrator Non Imaging Optics | Meyer; Stanley A. | Light-guide lens | (Ya, the wacco run a car on water guy) Wierd
US3970070 | 1976 | Concentrator Non Imaging Optics | Meyer; Stanley A. | Solar heating system | (Ya, the wacco run a car on water guy) US4398530 | 1983 | Concentrator Non Imaging Optics | Saunders; Norman B. | Solar collector and heating and cooling system | (A kind of leanto shaped structure with mirrors) Roof Top Heating & Lighting
US4496787 | 1985 | Concentrator Non Imaging Optics | Touchais | Djelalian Method and device for collecting and exploiting solar radiation | (Cup Shaped CPC.) CPC
US3923381 | 1975 | Concentrator Non Imaging Optics | Winston; Roland | Radiant energy collector | (Suitable for use with PV cells.) CPC
US4002499 | 1977 | Concentrator Non Imaging Optics | Winston; Roland | Radiant energy collector | (Suitable for thermal collection.) CPC
| Concentrator | Trough US4318394 | 1982 | Concentrator Inflatable | Alexander; William C. | Solar energy concentrator | (I don't understand how it works.) Inflatable Trough
US4175391 | 1979 | Concentrator Trough | Baer; Stephen C. | Self reorienting solar tracker | (Zomeworks Compound Parabolic Concentrator) Liquid Mass Transfer
US4967730 | 1990 | Concentrator Trough | Billheimer | Constant absorption solar furnace | (An unusual conical shaped trough.) Conical Trough
US4559926 | 1985 | Concentrator Trough | Butler | Centerless-drive solar collector system | Trough Drive
US4295463 | 1978 | Concentrator Trough | Citron; Jeffrey M. | jsee <jseeaz1@yahoo.com> Flexible V-shaped solar tracking concentrating solar energy collector | (Tracking over a limited range is done by moving the apex of the V shaped flexable membrain.) Movable Reflector on V Trough
US257560 | 1881 | Concentrator Trough | Deitzler; George W. | APPARATUS FOR UTILIZING SOLAR HEAT | Parabolic Trough
US4148564 | 1979 | Concentrator Trough | Devin | Guillemot Solar sensor with linear concentration with a fixed receiver and movable mirrors | (Russell (1975) Concentrator.) Russell
US4316448 | 1982 | Concentrator Trough | Dodge | Solar energy concentrator system | (Similar to the Carrizo Planes defunct solar power station. The mirrors are set at 60 degrees.) 2X PV
US4241726 | 1980 | Concentrator Trough | Doebel | Concave helix solar concentrator | (Useless patent, there is no point to this as the cross section is circular instead if parabolic and it shades the receiver a good portion of the day.) US4051834 | 1977 | Concentrator Trough | Fletcher | Miller Pohl Portable, linear-focused solar thermal energy collecting system | (Trough, reflector lining a cylindrical tube.) Traugh
US4454371 | 1984 | Concentrator Trough | Folino | Solar energy concentrator system | (Conventional Trough) US4131336 | 1978 | Concentrator Trough | Frosch | Miller Stephens Primary reflector for solar energy collection systems | (Describes how to make a concentrator similar to Russell (1975) heliostat using road building equipment. This, however, has Fresnel characteristics.) US4077392 | 1978 | Concentrator Trough | Garner | Novel solar collector | (Similar to George Plhak's drive mechanism, ok George uses cables. The important thing is the troughs rotate about the stationary line receivers.) Troughs linked with worm gears
US4628142 | 1986 | Tracker Concentrator Trough | Hashizume; Kenichi | Solar tracking mechanisms | (Bimetallic spring movement. The thermal sensors look similar to Baer's weight transfer mechanism.) Bimetallic
US6080927 | 2000 | Concentrator Trough | Johnson; Colin Francis | Solar concentrator for heat and electricity | Concentrator Trough for PV
US4249514 | 1981 | Concentrator Trough | Jones | Tracking solar energy concentrator | (The reflector is similar to the Russell (1975) Concentrator Heliostat patent except it moves, the design is more like a conventional fresnel parabolic trough, not a heliostat.) US4173213 | 1979 | Concentrator Trough | Kelly | Solar power system, with high concentration, linear reflective solar panels
| US5851309 | 1998 | Concentrator Trough | Kousa; Paavo | Directing and concentrating solar energy collectors | (Neat adjustable flexible concentrator built into the roof or wall of a house) Trough in a Roof
US5365920 | 1994 | Concentrator Trough | Lechner | Solar concentrator system | (Gregorian Optics by Bomin Solar Research, now defunct.) Gregorian Optics
US4003366 | 1975 | Concentrator Trough | Lightfoot; Daniel J. | Solar heat collector module | (Low grade concentrator, apears to be about 2X, with wide input angles) 2X Trough
USRE30407 | 1980 | Concentrator Trough | Lightfoot; Daniel J. | Solar heat collector module | (Low grade concentrator, apears to be about 2X, with wide input angles) 2X Trough
US4432342 | 1984 | Concentrator Trough | Lucas | Sylla Inflatable solar collector | Casegranian Trough
US5253637 | 1993 | Concentrator Trough | Maiden | Hyperfocal tracking solar thermal collector | (Off axis parabolic trough) Off Axis Trough
US528255 | 1893 | Concentrator Dish | Monk; Frank H. | Apparatus For Utilizing Solar Energy | (Horizontal axis trough mounted on a Lazy Susan track) US5833176 | 1998 | Concentrator Trough | Rubin | Fabbri Young Bowed solar array | (Method to use a cable to bow a segmented mirror into a parabola) Trough for Satellite
US3868823 | 1975 | Concentrator Trough | Russell, Jr.; John L. | DePlomb, Eugene P. Concentrator, Method, And System For Utilizing Radiant Energy | (The Russell Concentrator Reflector Heliostat is one of the important basic solar concentrator types. It has spawned many imitators and variations. The Russell Trough is not considered to have Fresnel characteristics even though the mirrors are composed of long thin strips. It is a true heliostat having geometry that constantly change throughout the day.) Russell Trough Heliostat
US4071017 | 1978 | Concentrator Trough | Russell, Jr.; John L. | Potthoff; Robert Edward Tensioned reflector support system | (The Russell Concentrator Reflector Heliostat is one of the important basic solar concentrator types. It has spawned many imitators and variations. The Russell Trough is not considered to have Fresnel characteristics even though the mirrors are composed of long thin strips. It is a true heliostat having geometry that constantly change throughout the day.) Russell Trough Heliostat
US4243019 | 1981 | Concentrator Trough | Severson | Light-weight-trough type solar concentrator shell | (Interesting method of making a stiff mirror. Similar to what I did for one of my heliostat mirrors. However, this is circular insted of parabolic, what's the point. Honeywell) US4820033 | 1989 | Concentrator Trough | Sick; Erwin | Solar mirror apparatus | (Parabolic Trough and Receiver installed in hoops used to rotate the whole assembly.) Parabolic Trough
US4359041 | 1982 | Concentrator Trough | Snodgrass | Light energy concentrating device | ( This appears to be a Trough with a Logarithmic curve instead of parabolic. Furthermore the reflector is split in half lengthwise effecting variable concentration and or changing input light angles. Very interesting!!) US2010-0206303 | 2009 | Concentrator Trough | Thorne; Steve | Solar Concentrator Truss Assemblies | (60 degree Trough with 2X concentration) 60 degree Trough
| Concentrator | TroughFresnel US3861379 | 1974 | Concentrator Trough Fresnel | Anderson; Henry | Low Profile Solar Ray Concentrator | (LFR, Linear Fresnel Reflector.) Linear Fresnel Reflector
US20120160302 | 2011 | Concentrator Trough Fresnel | Citron; Jeffrey Michael | jsee <jseeaz1@yahoo.com> Trough Shaped Fresnel Reflector Solar Concentrator | (Fresnel Parabolic Trough generally in the form of a "V".) Fresnel Parabolic Trough
US4476593 | 1984 | Concentrator Trough Fresnel | Fanselow; Dan L. | Cobb, Jr.; Sanford Bergsten; Ronald E. Tanning blanket | (3M Flat sheet with reflective embedded sawtoot patern. Fanselow is from my home town of White Bear Lake.) US4519384 | 1985 | Concentrator Trough Fresnel | Murtha; R. Michael | <rmmurtha@aol.com> Concentrating solar beam collector | PV Concentrator
US6021007 | 2000 | Concentrator Trough Fresnel | Murtha; R. Michael | <rmmurtha@aol.com> Side-collecting lightguide | Flat Plastic Sheet
US3868823 | 1975 | Concentrator Trough Fresnel | Russell, Jr.; John L. | DePlomb Concentrator, Method, and System for Utilizing Radiant Energy | (Describes a stationary Fresnel trough where the receiver tube moves in a circular arc) Russell Trough
US4281640 | 1981 | Concentrator Trough Fresnel | Wells; David N. | <laseraxe@erols.com > Electromagnetic radiation collector system | (One of David Wells' patents. Related to an LFR, Linear Fresnel Reflector.) Fresnel Double Trough Fresnel Double Trough
US5592932 | 1997 | Concentrator Trough Fresnel | Yeomans | Radiant energy collecting apparatus | (Similar to Wells) Fresnel Double Trough
US5309893 | 1994 | Concentrator Trough Fresnel | Yeomans | Solar energy collecting apparatus | Fresnel Double Trough
concrete | | Construction
| US1123261 | 1908 | Concrete | Edison; Thomas A. | Mold for concrete construction. | 40.694458,-74.264198 US1219272 | 1908 | Concrete | Edison; Thomas A. | Process of constructing concrete buildings. | 40.694458,-74.264198 US1326854 | 1917 | Concrete | Edison; Thomas A. | Apparatus for the production of concrete structures | 40.694458,-74.264198 cooling | | Cooling or Air Conditioning
| US5647221 | 1997 | Cooling Ejector | Garris, Jr.; Charles A. | Pressure exchanging ejector and refrigeration apparatus and method
| dental | | Relating to Dental Devices
| US5076302 | 1991 | Dental Floss Coater | Chari; Srinivas R. | Apparatus for and method of dispensing dental floss | A closure for a container, which closure houses a supply of dental floss. The closure is adapted for dispensing the dental floss, and may include a tab extending downwardly from the closure for diverting the dental floss towards the interior of the container. In this manner, the diverted dental floss may be wetted by the contents of the container Dental Floss Coater
US2128701 | 1938 | Suture Dispenser | Gelinsky; Ernst | Method and apparatus for preserving sterile material for medicinal purposes ready for use | Suture Dispenser
US5582195 | 1996 | Dental Floss Coater | Nagel; Richard R. | Device for dispensing both dental floss and mouthwash | A closure which allows the dispensing of mouthwash and the dispensing of dental floss from a single container. Dental Floss Coater
US6705328 | 2004 | Dental Floss Coater | Ramirez; Jose E. | Methods to impregnate and dispense floss using novel dental floss dispensers | Improved dental floss dispensers that impregnate floss with fluids and/or solids have been developed. One dental floss dispenser consists of a tube that holds a roll of dental floss separated from the main chamber by either a disc or a bag. Dental Floss Coater
US6926010 | 2005 | Dental Floss Coater | Sofie; Walter Francis | A device for coating dental floss with toothpaste | The device has a main body which has a chamber for containing a floss spool and a female stem to receive a tube of toothpaste, a floss spool disposed within the chamber, a threaded male stem, a spool chamber cover, a floss passage block which has two openings of different sizes, and a cut-off tang. ( Todd and I are looking into working with this gur to injection mold his parts. Cool Huh!!! ) Dental Floss Coater
electronics | | Electronic Circuits
| US5689196 | 1995 | Level Translator | Schutte; Herman | Circuit comprising a data communication bus | (I2C bus level translator by Phillips/NXP I2C manuel) I2C bus level translator
US6617913 | 2001 | H-bridge | Johnson; Duane C. | <redrok@redrok.com> Self-latching H-bridge system and apparatus | (My patent for Unisys) H-bridge
EMI | | EMI / RFI Supression components
| US5473110 | 1995 | EMI | Johnson; Duane C. | <redrok@redrok.com> Magnetically-attachable EMI shielding cover for attenuating electromagnetic emanation | (My patent for Unisys) Magnetic EMI cover
US5869788 | 1999 | EMI | Gordon; Arnold S. | Estes; Mark K. Andrejko; Roman Weighing scale with EMI/RFI shielding | (This patent references my patent. See Johnson) US6483024 | 2000 | EMI | Smithson; Harry G. | Dean; Steven J. Panel gasket | (This patent references my patent. See Johnson) US6672902 | 2001 | EMI | Skinner; Stephen D. | Chang; Steve Y. Heck; Howard L. Ji; Yun Reducing electromagnetic interference (EMI) emissions | (This patent references my patent. See Johnson) US6812413 | 2002 | EMI | Kats; Vyacheslav D. | Gordon; Arnold S. Electronic weighing apparatus utilizing surface acoustic waves | (This patent references my patent. See Johnson) US6987461 | 2002 | EMI | Loughry; Robert Joseph | System and method for addressing optical emanations from an information Processing Device | (This patent references my patent. See Johnson) US7053319 | 2002 | EMI | Kats; Vyacheslav D. | Gordon; Arnold S. Electronic weighing apparatus utilizing surface acoustic waves using sensors operating at different frequencies, having temperature compensation, and a push oscillator | (This patent references my patent. See Johnson) US6816372 | 2003 | EMI | Huettner; Cary Michael | Justin; Jeffrey L. O'Connell; Michael Desmond Peters; Kenneth Robert Vande Corput; Gregory Scott System, method and apparatus for noise and heat suppression, and for managing cables in a computer system | (This patent references my patent. See Johnson) TransientFiltering | | Transient Filtering
| US6717389 | 2001 | Transient Filtering | Johnson; Duane C. | <redrok@redrok.com> Method and apparatus for current controlled transient reduction in a voltage Regulator | (My patent for Unisys) Transient Filtering
US7005867 | 2003 | Transient Filtering | Hashimoto; Yoshihiro | Power supply circuit and testing device | (This patent references my patent. See Johnson) US7202651 | 2006 | Transient Filtering | Chapuis; Alain | System and method for providing digital pulse width modulation | (This patent references my patent. See Johnson) US7239115 | 2005 | Transient Filtering | Chapuis; Alain | Roark; Dennis R. Digital pulse width modulation controller with preset filter coefficients | (This patent references my patent. See Johnson) US7249267 | 2004 | Transient Filtering | Chapuis; Alain | Method and system for communicating filter compensation coefficients for a digital power control system | (This patent references my patent. See Johnson) US7266709 | 2006 | Transient Filtering | Chapuis; Alain | Guz; Mikhail Method and system for controlling an array of point-of-load regulators and auxiliary devices | (This patent references my patent. See Johnson) US7315156 | 2005 | Transient Filtering | Chapuis; Alain | System and method for controlling output-timing parameters of power converters | (This patent references my patent. See Johnson) US7315157 | 2006 | Transient Filtering | Chapuis; Alain | ADC transfer function providing improved dynamic regulation in a switched mode power supply | (This patent references my patent. See Johnson) US7327149 | 2005 | Transient Filtering | Chapuis; Alain | Bi-directional MOS current sense circuit | (This patent references my patent. See Johnson) US7372682 | 2004 | Transient Filtering | Chapuis; Alain | System and method for managing fault in a power system | (This patent references my patent. See Johnson) US7373527 | 2002 | Transient Filtering | Chapuis; Alain | System and method for interleaving point-of-load regulators | (This patent references my patent. See Johnson) US7394236 | 2006 | Transient Filtering | Chapuis; Alain | Roark; Dennis R. Digital double-loop output voltage regulation | (This patent references my patent. See Johnson) US7394445 | 2005 | Transient Filtering | Chapuis; Alain | Guz; Mikhail Digital power manager for controlling and monitoring an array of point-of-load regulators | (This patent references my patent. See Johnson) US7456617 | 2005 | Transient Filtering | Chapuis; Alain | Guz; Mikhail Roark; Dennis R. System for controlling and monitoring an array of point-of-load regulators by a host | (This patent references my patent. See Johnson) US7459892 | 2005 | Transient Filtering | Chapuis; Alain | System and method for controlling a point-of-load regulator | (This patent references my patent. See Johnson) US7493504 | 2007 | Transient Filtering | Chapuis; Alain | System and method for interleaving point-of-load regulators | (This patent references my patent. See Johnson) US7526660 | 2005 | Transient Filtering | Thaker; Mahesh Natverlal | Chapuis; Alain Voltage set point control scheme | (This patent references my patent. See Johnson) US7551416 | 2005 | Transient Filtering | Chou; Ching-Ling | Power supply equipped with an independent overload protection mechanism | (This patent references my patent. See Johnson) US7554310 | 2007 | Transient Filtering | Chapuis; Alain | Roark; Dennis R. Digital double-loop output voltage regulation | (This patent references my patent. See Johnson) US7554778 | 2007 | Transient Filtering | Chapuis; Alain | System and method for managing fault in a power system | (This patent references my patent. See Johnson) US7565559 | 2007 | Transient Filtering | Chapuis; Alain | Method and system for communicating filter compensation coefficients for a digital power control system | (This patent references my patent. See Johnson) US7583487 | 2007 | Transient Filtering | Chapuis; Alain | System and method for managing fault in a power system | (This patent references my patent. See Johnson) US7586367 | 2007 | Transient Filtering | De Lima Filho; Jader Alves | Current sensor device | (This patent references my patent. See Johnson) US7603572 | 2006 | Transient Filtering | Berthold; Jörg | Henzler; Stephan Voltage stabilizer stabilizing the voltage of a power line wherein power consumption elements are individually activated based on a quantity of currents to be drained | (This patent references my patent. See Johnson) US7646382 | 2007 | Transient Filtering | Chapuis; Alain | Guz; Mikhail Digital power manager for controlling and monitoring an array of point-of-load regulators | (This patent references my patent. See Johnson) US7673157 | 2007 | Transient Filtering | Chapuis; Alain | Guz; Mikhail Method and system for controlling a mixed array of point-of-load regulators through a bus translator | (This patent references my patent. See Johnson) US7710092 | 2007 | Transient Filtering | Chapuis; Alain | Lei; Shuyu Self tracking ADC for digital power supply control systemsr | (This patent references my patent. See Johnson) US7719293 | 2007 | Transient Filtering | Farkas; Sandor | System and method for current measurement | (This patent references my patent. See Johnson) US7737961 | 2007 | Transient Filtering | Chapuis; Alain | Guz; Mikhail Method and system for controlling and monitoring an array of point-of-load regulators | (This patent references my patent. See Johnson) US7743266 | 2007 | Transient Filtering | Chapuis; Alain | Method and system for optimizing filter compensation coefficients for a digital power control system | (This patent references my patent. See Johnson) US7782026 | 2005 | Transient Filtering | Silvestre; Josep Montanyŕ | Regulator circuit and corresponding uses | (This patent references my patent. See Johnson) US7782029 | 2007 | Transient Filtering | Chapuis; Alain | Guz; Mikhail Roark; Dennis R. Method and system for controlling and monitoring an array of point-of-load regulators | (This patent references my patent. See Johnson) US7834613 | 2008 | Transient Filtering | Ziegler; Silvio | Gammenthaler; Peter Chapuis; Alain Isolated current to voltage, voltage to voltage converter | (This patent references my patent. See Johnson) US7836322 | 2007 | Transient Filtering | Chapuis; Alain | Guz; Mikhail System for controlling an array of point-of-load regulators and auxiliary devices | (This patent references my patent. See Johnson) US7877036 | 2008 | Transient Filtering | Kim; Dong-kyu | Kim; Min-seon Power supply device and image forming apparatus having the same | (This patent references my patent. See Johnson) US7882372 | 2007 | Transient Filtering | Chapuis; Alain | Guz; Mikhail Method and system for controlling and monitoring an array of point-of-load regulators | (This patent references my patent. See Johnson) US7994766 | 2008 | Transient Filtering | De Lima Filho; Jader Alves | Pimenta; Wallace A. Differential current sensor device and method | (This patent references my patent. See Johnson) US8086874 | 2007 | Transient Filtering | Chapuis; Alain | Guz; Mikhail Method and system for controlling an array of point-of-load regulators and auxiliary devices | (This patent references my patent. See Johnson) US8218995 | 2010 | Transient Filtering | Kim; Dong-kyu | Kim; Min-seon Power supply device and image forming apparatus having the same | (This patent references my patent. See Johnson) H-bridge | | H-bridge
| US6617913 | 2001 | H-bridge | Johnson; Duane C. | <redrok@redrok.com> Self-latching H-bridge system and apparatus | (My patent for Unisys)
US6753717 | 2001 | H-bridge | Inoue; Koichi | Osuka; Takao H-bridge driver | (This patent references my patent. See Johnson) US6798271 | 2003 | H-bridge | Swize; Gregory Emil | Clamping circuit and method for DMOS drivers | (This patent references my patent. See Johnson) US6989643 | 2003 | H-bridge | Komaromi; Patrick | Svobodnik; Gregor Electrical drive apparatus which can be operated via a full-bridge circuit, with a different load depending on the drive direction | (This patent references my patent. See Johnson) US7358693 | 2005 | H-bridge | Choi; Yong-won | Lee; Yo-han Motor drive control device | (This patent references my patent. See Johnson) US7400106 | 2005 | H-bridge | DeCicco; John | Kovarik; Illya Method and apparatus for providing torque limit feedback in a power drill | (This patent references my patent. See Johnson) US7487844 | 2006 | H-bridge | DeCicco; John | Pozgay; David Kovarik; Illya Drill with solid state speed control | (This patent references my patent. See Johnson) US7616046 | 2002 | H-bridge | Van Bijnen; Johannes Henricus | De La Rambelje; Peter Humphrey System comprising an electrical bridge for generating an electrical signal for a load and a control unit for such a system | (This patent references my patent. See Johnson) US7708085 | 2006 | H-bridge | DeCicco; John | Kovarik; Illya Pozgay; David Articulating drill with optical speed control and method of operation | (This patent references my patent. See Johnson) US7817450 | 2009 | H-bridge | Fornage; Martin | Method and apparatus for resetting a silicon controlled rectifier bridge | (This patent references my patent. See Johnson) US7861796 | 2009 | H-bridge | DeCicco; John | Pozgay; David Kovarik; Illya Method of operating drill with solid state speed control | (This patent references my patent. See Johnson) US7926585 | 2009 | H-bridge | Pozgay; David | Krondorfer; Harald Freese; John B. Method and apparatus for an articulating drill | (This patent references my patent. See Johnson) engine | | Heat Engines
| US5027602 | 1991 | Engine Carnot | Glen; John S. | Edwards; Thomas C. Heat engine, refrigeration and heat pump cycles approximating the Carnot cycle and apparatus therefor
| US5819554 | 1998 | Engine Carnot | Glen; John Stewart | Rotating vane compressor with energy recovery section, operating on a cycle approximating the ideal reversed Carnot cycle
| US4691523 | 1987 | Engine Carnot | Rosado; Serafin M. | Thermodynamic process for a practical approach to the Carnot cycle
| US4419617 | 1983 | Engine Curie Point | Reitz; Ronald P. | Thermally electrogenerative storage cell and generator apparatus
| US7160639 | 2003 | Engine Johnson | Johnson; Lonnie G. | Muller; James R. Johnson reversible engine | (Direct heat to electric conversion through an electrochemical cell, Johnson Thermo-Electrochemical Converter System, JTEC.) Solar to electric
US5916140 | 1999 | Engine Liquid | Hageman | Hydraulic engine powered by introduction and removal of heat from a working fluid | (Sounds like a Malone engine, liquid fluid version of a Stirling Engine) US5899067 | 1999 | Engine Liquid | Hageman | Hydraulic engine powered by introduction and removal of heat from a working fluid | (Sounds like a Malone engine, liquid fluid version of a Stirling Engine) US4428193 | 1984 | Engine Magnetic | Papp; Joseph | Inert gas fuel, fuel preparation apparatus and system for extracting useful work from the fuel
| US6094915 | 2000 | Engine Otto | Negre; Guy | Negre; Cyril Method and devices for eliminating the pollution of cyclic internal combustion engines with an independent combustion chamber | (Internal combustion gasoline engine burning the fuel with compressed air. Apparently this company uses this patent MDI, Motor Development International) US5765387 | 1998 | Engine Rankine | Amin | Device and method for thermal transfer using air as the working medium | (See: Entropy Systems) US5547341 | 1995 | Engine Rankine | Amin | Device for thermal transfer using air as the working medium | (See: Entropy Systems) US3750393 | 1973 | Engine Rotary | Minto; Wallace L. | Keller Prime mover system
| US5236349 | 1993 | Engine Turbine | Fabris | Two-phase reaction turbine
| US4332520 | 1982 | Engine Turbine | House | Velocity pump reaction turbine
| US4627241 | 1986 | Engine Uniflow | Johnston | Closed loop solar collector system powering a self-starting uniflow steam engine | Solar Rankine
US4134264 | 1979 | Engine Vapor | Baer; Stephen C. | Double bubble wheel engine | (Similar to the Minto Wheel. Zomeworks The "Minto Wonder Wheel" is horribly low in efficiency due to the wasted energy needed to heat and cool the thermal mass of the liquid just to get expansion of the gas. Baer attempts to minimize the heating of the liquid and maximize the heating of the gas. Though not perfect, Baer's design is much better than Minto's. Minto didn't patent his wheel claiming to give it to the world. Actually he gave it away as it was never going to be very useful except in very special applications such as a moving sculpture.) Solar Brayton Engine Minto Wonder Wheel
US4195481 | 1980 | Engine Vapor | Gregory; Alvin L. | Power plant | (Similar concept to Roesel) Liquid Piston Rankine Engine
US3901033 | 1975 | Engine Vapor | McAlister; Roy E. | Vapor pressurized hydrostatic drive | (Similar concept to Roesel) US3636706 | 1972 | Engine Vapor | Minto; Wallace L. | Heat-to-power conversion method and apparatus
| US3608311 | 1971 | Engine Vapor | Roesel; John F. JR. | Engine | (This is a pair of half filled columns of liquid. Above the liquid is a compressible fluid. Hot and cold liquid is alternately sprayed into the fluid causing pressure changes. This is escentially a Brayton Engine.) Solar Brayton Engine
flatplate | | Flat Plate Solar Collectors
| US4226506 | 1980 | Flat Plate | Auger; Robert H. | Swiveling solar reflector with multiple reflecting elements supported by prefabricated cambered members | Swiveling Collector
US4676225 | 1987 | Flat Plate | Bartera; Ralph | Method and apparatus for enhancing the pumping action of a geyser pumped tube | Flat Plate
US4478211 | 1984 | Flat Plate | Haine; Eldon | Bartera; Ralph Self-pumping solar heating system with geyser pumping action (I think this is the Copper Cricket) | Flat Plate
US4246890 | 1981 | Flat Plate | Kraus; Robert A. | Kraus; Edmund J. Passive solar heater fluid pump system | (This pump uses a 2 pipe heat pipe to exchange heat from the thermal transfer fluid to the heated water) Flat Plate
US4458669 | 1984 | Flat Plate | Lee; Kap-Joong | Building heating system | Water Heater
US4419981 | 1983 | Flat Plate | Mori; Kei | Sun tracking apparatus | Tracker
US6223743 | 2001 | Flat Plate | Prueitt; Melvin L. | Solar power generation and energy storage system | (Solar Energy Limited) Inflatable
US4357932 | 1982 | Flat Plate | Stacy; W. Dodd | Self pumped solar energy collection system | (Uses a kind of single tube heat pipe.) Solar Water Heater
heatpipe | | Heat Pipes | (Basicly, HeatPipes are mostly filled with vapor, and Bubble Pumps are mostly filled with liquid.) US3618569 | 1971 | Heat Pipe | Baer; Stephen C. | Device for transferring heat from one portion of a water reservoir to another | (Zomeworks) Pond Ice Melter
US4336837 | 1982 | Heat Pipe | Koenig; Daniel R. | Entirely passive heat pipe apparatus capable of operating against gravity | (Incorporates a bubble pump to bring condensed liquid to the top.) Up Side Down
US5190098 | 1993 | Heat Pipe | Long; Erwin L. | Thermosyphon with evaporator having rising and falling sections | Two Pipe
US4357932 | 1982 | Heat Pipe | Stacy; W. Dodd | Self pumped solar energy collection system | (Uses a kind of single tube heat pipe.) Solar Water Heater
US4082109 | 1979 | Heat Pipe | Sun; Tsu-Hung | Basiulis; Algerd Heat pipe actuated valve | Valve
US3817321 | 1974 | Heat Pipe | von Cube; Hans-Ludwig | Wagner; Edmund Cooling apparatus semiconductor elements, comprising partitioned bubble pump, separator and condenser means | Heat Sink
hydrogen | | Hydrogen
| US4391793 | 1983 | Hydrogen | Boese | Plant for thermochemical water dissociation by solar energy | (Magnetic ion separation) Magnetic
US4342738 | 1982 | Hydrogen | Burgund | Hydrogen generation as fuel by use of solar ultraviolet light process | (Sunlight is separated into its infrared portion and its ultraviolet light portion.) US4588577 | 1986 | Hydrogen | Cardinal | Method for generating hydrogen | (Generation of hydrogen gas from hot water by means of a metallic catalyst such as nickel powder and a chelating agent such as EDTA) US4071608 | 1978 | Hydrogen | Diggs | Dissociation of water into hydrogen and oxygen using solar energy | (Hydrogen and oxygen are separated from each other by centrifugal forces.) Centrifugation
US4310503 | 1982 | Hydrogen | Erickson | Hydrogen production by multistaged intermediate oxidation-reduction | (Steam is reformed to hydrogen in two or more successive stages by chemical reaction with intermediates, at least one of which is selected from tin, indium, germanium, molybdenum or WO2.) US4053576 | 1977 | Hydrogen | Fletcher | System for obtaining hydrogen and oxygen from water using solar energy | (Separation through diffusion University of Minnesota) Diffusion
US4332775 | 1982 | Hydrogen | Genequand | Gross Hydrogen generator utilizing solar energy to dissociate water | (Separation through diffusion.) Diffusion
US4476105 | 1984 | Hydrogen | Greenbaum | Process for photosynthetically splitting water | (Photolytic reactor which contains a water-suspension of a photoactive material containing a hydrogen-liberating catalyst.) US3980053 | 1976 | Hydrogen | Horvath; Stephen | Fuel supply apparatus for internal combustion engines
| US4490349 | 1984 | Hydrogen | Horvath; Stephen | Hydrogen production | (One of chamber walls is formed of a reactant such as iron which reacts exothermally with the superheated steam to liberate free hydrogen and to produce an oxidized compound such as ferric oxide. The other chamber wall is formed as a thin diffusion membrane permeable to hydrogen but relatively impermeable to steam and oxygen and hydrogen is extracted from the chamber by diffusion.) US5658448 | 1997 | Hydrogen | Lasich | Production of hydrogen from solar radiation at high efficiency | (Solid oxide electrolysis.) US5973825 | 1999 | Hydrogen | Lasich | Production of hydrogen from solar radiation at high efficiency | (Solid oxide electrolysis.) US5589599 | 1996 | Hydrogen | McMullen | McMullen McMullen Pyrolytic conversion of organic feedstock and waste
| US4826581 | 1989 | Hydrogen | Meyer; Stanley A. | Controlled process for the production of thermal energy from gases and apparatus useful therefore | (Ya, the wacco run a car on water guy) US4613779 | 1986 | Hydrogen | Meyer; Stanley A. | Electrical pulse generator
| US4613304 | 1986 | Hydrogen | Meyer; Stanley A. | Gas electrical hydrogen generator
| US4798661 | 1989 | Hydrogen | Meyer; Stanley A. | Gas generator voltage control circuit
| US4421474 | 1983 | Hydrogen | Meyer; Stanley A. | Hydrogen gas burner
| US4389981 | 1983 | Hydrogen | Meyer; Stanley A. | Hydrogen gas injector system for internal combustion engine
| US4936961 | 1990 | Hydrogen | Meyer; Stanley A. | Method for the production of a fuel gas
| US5149407 | 1992 | Hydrogen | Meyer; Stanley A. | Process and apparatus for the production of fuel gas and the enhanced release of thermal energy from such gas
| US4465455 | 1984 | Hydrogen | Meyer; Stanley A. | Start-up/shut-down for a hydrogen gas burner
| US6024935 | 2000 | Hydrogen | Mills | Good Phillips Popov Lower-energy hydrogen methods and structures | ( An example of a patent being granted to "crank" science ) US4233127 | 1980 | Hydrogen | Monahan | Process and apparatus for generating hydrogen and oxygen using solar energy
| US4011149 | 1977 | Hydrogen | Nozik | Photoelectrolysis of water by solar radiation | (thin film semiconductor.) US4405594 | 1983 | Hydrogen | Pyle; Walter R. | <Hion solar> Photo separatory nozzle | (H-ION Solar) Separatory Nozzle
US4019868 | 1977 | Hydrogen | Sebacher | Sabol Solar hydrogen generator | (Separation through diffusion.) US4595568 | 1986 | Hydrogen | Van Damme | Fripiat Nijs Marceau Francois Photosensitive cell for the decomposition of water | (Using catalysts) US4696809 | 1987 | Hydrogen | Vialaron | Olalde Gauthier Process and apparatus for thermolytically dissociating water | (Rapid quenching of the gasses with cold water in the reaction cell.) Thermolysys of water
US5510201 | 1996 | Hydrogen | Werth | Method of operating a fuel cell wherein hydrogen is generated by providing iron in situ | (Using catalysts) US3844262 | 1974 | Hydrogen Oxygen | Dieges; Paul Bertrand | Vaporization of Exhaust Products in Hydrogen-oxygen Engine
| US4880443 | 1989 | Hydrogen Oxygen | Miller | Theis Molecular sieve oxygen concentrator with secondary oxygen purifier | (Separation through diffusion.) US5614460 | 1997 | Hydrogen Storage | Schwarz | Putyera Bandosz Jagiello Microporous carbons for fuel gas storage | (Hydrogen Storage) IC | | Internal Combustion
| US5794601 | 1998 | IC Carburetor | Pantone | Fuel pretreater apparatus and method | (The GEET carburetor) ignitor | | Ignitors
| US5798601 | 1998 | Ignitor Piezoelectric | Hansen | Adjustable retrofit ignition kit for portable gas appliances | (Hansen is from my home town of White Bear Lake.) instruments | | Instrumentation
| US1889490 | 1932 | Instruments Camber Caster Gauge | Phelps; Clyde H. | TOOL FOR MEASURING CAMBER OF WHEELS AND CASTER OF KING PINS | (I got one of these at a garage sale. Cool!!) Camber Caster Gauge
US4343191 | 1982 | Instruments Flowmeter | Cairenius | Fluid flow meter
| US4462262 | 1984 | Instruments Flowmeter | Kahnke | Fluid flow sensing system | (A ball rotating about a circular track By Honeywell) US4331036 | 1982 | Instruments Flowmeter | Severson | Volk Fluid flowmeter | (A ball rotating about a circular track By Honeywell) US4015116 | 1977 | Instruments Solar | Bahm | Measurement of solar radiation
| US4609288 | 1986 | Instruments Solar | Dodge | Direct ray solar meter and method | XYZ Light Meter
US3875404 | 1975 | Instruments Solar | Fletcher | Fletcher Wide angle sun sensor
| US3876880 | 1975 | Instruments Solar | Guicherd | Pyranometer for the measurement of solar radiation
| US4719344 | 1988 | Instruments Solar | Hiroyuki | Method of and apparatus for measuring amount of solar radiation received directly
| US4253764 | 1981 | Instruments Solar | Morrill | Solar energy metering and recording system
| US5861947 | 1999 | Instruments Solar | Neumann | Measuring device for measuring concentrated radiation of light
| US4110049 | 1978 | Instruments Solar | Younskevicius | Sun meter | Sun meter
US4560286 | 1985 | Instruments Temperature | Wickersheim | Optical temperature measurement techniques utilizing phosphors | (Luxtron) insulation | | Insulation
| US4231202 | 1980 | Insulation Bead Wall | Dube; Marcel | Double-glazed building panel and filling system
| US3903665 | 1975 | Insulation Bead Wall | Harrison | Heat energy transmission control panel | (Beadwall from Zomeworks) US4306387 | 1981 | Insulation Bead Wall | Hopkins | Hardee Controllable insulating effects by selective interposition of insulating particles in a cavity of an energy transmission panel assembly
| US4147002 | 1979 | Insulation Bead Wall | Kautz | Light valve system and greenhouse utilizing the same
| US4370837 | 1983 | Insulation Bead Wall | Larguia | Arrangement for selectively changing the radiation and vibration transmission properties of panels
| US4446850 | 1982 | Insulation Bead Wall | Zilisch | Solar panel with storage
| US4562674 | 1982 | Insulation Bubble Wall | Nelson | Replaceable foam insulation system
| US3672184 | 1972 | Insulation Bubble Wall | Zeilon; Sten Olof | Apparatus for thermally insulating a body
| US4467786 | 1984 | Insulation Coverites | Sorensen; Jens | Solar heating of water utilizing coverites. | (Insulation for a solar pond) lighting | | Lighting
| US4533317 | 1985 | Lighting Mantles | Addison | Yttrium oxide mantles for fuel-burning lanterns | (Coleman) US5116220 | 1992 | Lighting Mantles | Kinzel | Warren Quick disconnect clip for gas latern mantle | (Warren is from my home town of White Bear Lake.) Warkinz Industries Mantle
US5639231 | 1997 | Lighting Mantles | May | Murray Swearingen Taylor Van Driest Mantle and spring clip assembly | (Colemans attempt to circumvent the Kinzel patent. In my opinion this is an inferier clip which might cause one to break the other good mantle in a dual mantle lantern.) Colemans Mantle
US5261184 | 1993 | Lighting Solar | Appeldorn; Roger H. | Jaster; Paul A Cobb, Jr.; Sanford Skylight | (Appeldorn is from my home town of White Bear Lake. 3M) US4429952 | 1984 | Lighting Solar | Dominguez; Richard L. | Tracking reflector assembly for a skylight | (Flat Mirror) US4883340 | 1989 | Lighting Solar | Dominguez; Richard L. | Solar lighting reflector apparatus having slatted mirrors and improved tracker | (Fresnel Flat Mirror) Heliostat Tracker
USD364469 | 1994 | Lighting Solar | Eijadi | Abraham DeKeyser Hansen Skylight | (Abraham is from my home town of White Bear Lake.) US4593976 | 1986 | Lighting Solar | Eijadi | Bennett Solar illumination device
| US4349245 | 1982 | Lighting Solar | Kliman | Modular natural lighting system
| US4720170 | 1988 | Lighting Solar | Learn | Daylamp system | (Fiberoptic and dish system) US5560700 | 1996 | Lighting Solar | Levens | Light coupler | (Fiberoptic and dish system) US4572613 | 1986 | Lighting Solar | Mori; Kei | Method and apparatus for illuminating a spot inside of a tunnel of a highway | (Fiberoptic and Luminescent(?) system) Light Pipe
US3709583 | 1973 | Lighting Solar | Pfannkuch; Heinricta | Saxburger; Adolf Schnebel; Fritz Covering Device For Skylights | Heliostat Skylight
US4788437 | 1988 | Lighting Tritium | Urquhart | Hart Tritium light
| mechanical | | Mechanical Devices
| US5094562 | 1992 | Mechanical Connectors | Anderson | Three-way clamp for structural assemblies | (Robotic Originals.) Connector
US3834549 | 1974 | Mechanical Connectors | Burg | Lieberman Fiorenza Structural system | (Gordon Tube Products Company, Bronx, NY.) Connector
US4923322 | 1990 | Mechanical Connectors | Burg | Clamped framework assembly and connectors used therewith | (Uni Corp, Bronx, NY.) US4864795 | 1989 | Mechanical Connectors | Burg | Structural framework system and clamp assembly | (Uni Corp, Bronx, NY.) US5403110 | 1995 | Mechanical Connectors | Sammann | Square T clamp assembly for elongate members | (Connector for wooden assemplies See Timber Ventures.) Pipe Connector
US4007993 | 1977 | Mechanical Connectors | Schwartz | Pipe coupler | Pipe Connector
US5704374 | 1998 | Mechanical Log Splitter | Abrahamsson | Hand-driven wood splitter | (See Smart-Splitter) Wood Splitter
US4423759 | 1884 | Mechanical Log Splitter | Seeger | Electrically powered log splitter | (Nut and screw type) medical | | Medical Devices
| US6169924 | 2001 | Medical Orgasmatron | Meloy; T. Stuart | Martin; W. Joseph Spinal cord stimulation | (A method for spinal cord stimulation to treat orgasmic dysfunction. An Orgasmatron like in Woody Allen movie "Sleeper". (See Medtronic) Orgasmatron
US4084595 | 1978 | Medical TENS | Miller | Transcutaneous nerve stimulator (TENS) | (I met this guy once. As I recall, Medtronics purchased the rights to the TENS. They did nothing to market or develop the device. Miller sued Medtronics for failure to market. Miller regained his patent rights and succesfuly marketed the TENS. He didn't have to return the $150,000 to Medtronics. I might have some details incorrect as it's been a long time. (See Medtronic) TENS Schematic
US5235967 | 1993 | Medical Thumper | Arbisi | Mitchell Electro-magnetic impact massager
| US4977889 | 1990 | Medical Thumper | Budd | Fitting and tuning chest compression device | (I repaired this device for Dr. Leland G. Hansen. University of Minnesota) US5000164 | 1991 | Medical Thumper | Cooper | Circulation enhancing apparatus
| US5772613 | 1998 | Medical Thumper | Gelfand | Rothman Cardiopulmonary resuscitation system with centrifugal compression pump | (Cardiologic Systems, Inc.) US5569170 | 1996 | Medical Thumper | Hansen; Craig N. | Pulsator | (Electromed, Inc.) Chest Thumper
US5453081 | 1995 | Medical Thumper | Hansen; Craig N. | Pulsator | Chest Thumper
US5871008 | 1999 | Medical Thumper | Poon | Kolandaivelu Miniature high-frequency ventilator | (Massachusetts Institute of Technology) US5769797 | 1998 | Medical Thumper | Van Brunt | Gagne Oscillatory chest compression device | (American Biosystems, Inc.) US4838263 | 1991 | Medical Thumper | Warwick | Hansen; Leland G. Chest compression apparatus | (University of Minnesota ) US5056505 | 1991 | Medical Thumper | Warwick | Hansen; Leland G. Chest compression apparatus | (University of Minnesota ) US4982735 | 1991 | Medical Thumper | Yagata | Noguchi Artificial ventilator | (Sumitomo Bakelite Company Limited) MHDG | | MagnetoHydroDynamic Generators
| US4847525 | 1989 | MHDG | Blumenau | Methods and systems for magnetohydrodynamic power conversion
| US4275318 | 1981 | MHDG | Duncan | Magnetohydrodynamic method and apparatus for converting solar radiation to electrical energy
| US4200815 | 1980 | MHDG | Petrick | Pierson Schreine MHD Generating system
| US4773144 | 1988 | MHDG | Youtie | Method of manufacture of scroll compressors and expanders
| US4599551 | 1986 | MHDG Acoustic | Wheatley | Swift Migliori Thermoacoustic magnetohydrodynamic electrical generator | MHD
US4395648 | 1983 | MHDG Electrothermodynamic | Marks | Electrothermodynamic (ETD) power converter | ( OK, this isn't MHD. Its electrostatic instead of megmetic. ) US5337560 | 1994 | MHDG Gas | Abdelmalek | Shock absorber and a hermetically sealed scroll gas expander for a vehicular gas compression and expansion power system
| US4287443 | 1981 | MHDG Liquid | Aladiev | Dzhamardzhashvili Liquid-metal magnetohydrodynamic converter
| US4191901 | 1980 | MHDG Liquid | Branover | Method and system for converting solar energy into electricity | (LMMHD See Hydromag International Association for Hydromagnetic Phenomena and Applications. Ben-Gurion University of the Negev.) LMMHD
US4486701 | 1984 | MHDG Liquid | Cover | Thermal energy conversion
| US5637934 | 1997 | MHDG Liquid | Fabris | High expansion magnetohydrodynamic liquid metal generator of electricity
| US4183744 | 1980 | MHDG Liquid | Fischer | Johnson Method of foaming a liquid metal
| US5473205 | 1995 | MHDG Liquid | Haaland | Double-duct liquid metal magnetohydrodynamic engine
| US5637935 | 1997 | MHDG Liquid | Haaland | Double-duct liquid metal magnetohydrodynamic engine
| US4388542 | 1983 | MHDG Liquid | Lovelace | Lee Hohl Solar driven liquid metal MHD power generator
| US3155850 | 1964 | MHDG Liquid | Meyer | MAGNETOHYDRODYNAMIC VOLTAGE GENERATOR
| US4454865 | 1984 | MHDG Liquid | Tammen | Liquid metal solar power system | LMMHD
US3453462 | 1969 | MHDG Liquid | Yih-Yun Hsu | Berea Dunning SLUG FLOW MAGNETOHYDRODYNAMIC GENERATOR | (This looks closest to the video I saw on TV years ago.) US4831289 | 1989 | MHDG Two Phase | Blumenau | Gas compression using a two-phase MHD channel
| US5614773 | 1997 | MHDG Two Phase | Fabris | Generator section of a two-phase flow liquid metal magnetohydrodynamic generator | (LMMHD) US3878410 | 1975 | MHDG Two Phase | Petrick | Cutting Amend Cole Two-phase liquid-metal magnetohydrodynamic generator
| US3158764 | 1964 | MHDG Two Phase | Elliott | Two-Fluid magnetohydrodynamic system and Method for Thermal-Electric Power Conversion
| MHDP | | MagnetoHydroDynamic Pumps
| MPPT | | Maximum Power Point Trackers
| US4580090 | 1986 | MPPT | Bailey | Haver Maximum power tracker | (Open loop controller with photo sensor input.) Open Loop
US5677833 | 1997 | MPPT | Bingley | Power conditioning system for a four quadrant photovoltaic array with an inverter for each array quadrant | (Multiple inverters for power transmittion) US5493204 | 1996 | MPPT | Caldwell | Negative impedance peak power tracker | (Very slick circuit in its simplicity. I don't understand how it works?) US4604567 | 1996 | MPPT | Chetty | Maximum power transfer system for a solar cell array | (MPPT is controlled by PV open circuit voltage.) Open Loop
US4390940 | 1983 | MPPT | Corbefin | Vacelet Process and system for producing photovoltaic power
| US5604430 | 1983 | MPPT | Decker | Baxter Lerner Campbell Rosenthal Cook Solar array maximum power tracker with arcjet load | (MPPT powered by solar PV and drive a highly non linear plasma arcjet. Used for spacecraft propultion.) US5847549 | 1998 | MPPT | Dodson | Power converter stabilization loop | (Conventional design with the addition of a stabilization loop. Used to power telephone equipment from the line.) US5293447 | 1994 | MPPT | Fanney | Dougherty Photovoltaic solar water heating system | (a very simple multi stage loading mechanism using an open loop PV sensor) US5327071 | 1994 | MPPT | Frederick | Jermakian Microprocessor control of multiple peak power tracking DC/DC converters for use with solar cell arrays
| US4175249 | 1979 | MPPT | Gruber | Self reconfiguring solar cell system | Series / Parallel combinations
US5867011 | 1999 | MPPT | Jo | Kim Maximum power point detecting circuit | (Neat circuit generates a PWM signal for the switching power comverter. The patent also describes several earlier circuits)
US4916382 | 1990 | MPPT | Kent | System for maximizing efficiency of power transfer | (Water pumping controller) US4873480 | 1989 | MPPT | Lafferty | Coupling network for improving conversion efficiency of photovoltaic power source
| US5027051 | 1991 | MPPT | Lafferty | Photovoltaic source switching regulator with maximum power transfer efficiency without voltage change | (Good description of a circuit that both maximizes power transfer while maintaining a regulated output voltage) US4204147 | 1980 | MPPT | Larrabee | Power transfer apparatus | (Uses stepping motor controlled Variac to match PV array to load) Variac modulated converter
US5923100 | 1999 | MPPT | Lukens | Moser Apparatus for controlling a solar array power system | (This isn't new. It uses an XOR and FF to arbitrate power control. I built one of these in the '70s to controll a wind generator. I still have the PC board.)
US5801519 | 1998 | MPPT | Midya | Krein Turnbull Self-excited power minimizer/maximizer for switching power converters and switching motor drive applications | (Uses an AD633 analog multipler) AD633
US5869956 | 1999 | MPPT | Nagao | Fukae Takehara Kurokami Solar power generation apparatus and power control device therefor
| US3566143 | 1971 | MPPT | Paine | Cherdak Douglas Maximum Power Point Tracker
| US4404472 | 1983 | MPPT | Steigerwald | Maximum power control for a solar array connected to a load
| US4494180 | 1985 | MPPT | Streater | Dwyer Electrical power matching system
| US3696286 | 1972 | MPPT | Ule | System for Detecting and Utilizing the Maximum Available Power From Solar Cells
| US5001415 | 1991 | MPPT | Watkinson | Electrical power apparatus for controlling the supply of electrical power from an array of photovoltaic cells to an electrical head | (Open loop controller) US4525633 | 1985 | MPPT | Wertheim | Herbermann Wind turbine maximum power tracking device
| US4868379 | 1989 | MPPT | West | Photovoltaic array with two-axis power maximization tracking | (Maximizes PV array power output by driving the 2 axes of the mount. Not a true MPPT) optics | | Optics
| US5927272 | 1999 | Optics | Robertson | Combination solar powered cigarette lighter and telescope
| pneumatic | | Air powered equipment
| US4478304 | 1984 | Pneumatic Engine | Delano | Compressed air power engine
| US5375417 | 1994 | Pneumatic Engine | Barth | Method of and means for driving a pneumatic engine
| US5515675 | 1996 | Pneumatic Engine | Bindschatel | Apparatus to convert a four-stroke internal combustion engine to a two-stroke pneumatically powered engine
| US4292804 | 1981 | Pneumatic Engine | Rogers | Method and apparatus for operating an engine on compressed gas
| US4942736 | 1990 | Pneumatic Solar | Bronicki | Method of and apparatus for producing power from solar energy | Solar Turbine
US5448889 | 1995 | Pneumatic Solar | Bronicki | Method of and apparatus for producing power using compressed air | Solar Turbine
US6044924 | 2000 | Pneumatic Vehicle Air | Adli | Hot compressed gas powered vehicle
| US4370857 | 1983 | Pneumatic Vehicle Air | Miller; Terry R. | Pneumatic system for compressed air driven vehicle | (Miller, now deceased, built several cars in Joplin, Missouri. These were based on a Ford Escorts chases. The engine was composed of 2 halves. Each half has two double acting cylinders in series for a total of 4 expansions. Each half was geared up, yes geared up 18 to 1, and directly connected to each front wheel. The storage tank was a light weight fiberglass pressurized to 3500psi. The high pressure was reduced through an expansion pressure regulator to 500psi. The engine power was controlled by a throttling valve to 0 to 500psi.) Air powered car
US4294323 | 1981 | Pneumatic Vehicle Nitrogen | Boese | Cryogenic powered vehicle
| US4106581 | 1978 | Pneumatic Vehicle Nitrogen | West | Lee Noris Vehicle utilizing cryogenic fuel | Air powered car
polla | | Inventions of Dennis Polla
| US5454904 | 1995 | Polla | Ghezzo | Saia Bagepalli Imam Polla; Dennis L. Micromachining methods for making micromechanical moving structures including multiple contact switching system | (General Electric Company) US5374792 | 1994 | Polla | Ghezzo | Saia Bagepalli Imam Polla; Dennis L. Micromechanical moving structures including multiple contact switching system | (General Electric Company) US5367585 | 1994 | Polla | Ghezzo | Yakymyshyn Saia Polla; Dennis L. Integrated microelectromechanical polymeric photonic switch | (General Electric Company) US4608865 | 1986 | Polla | Muller | Polla; Dennis L. Integrated pyroelectric sensor and method | (University of California) US5607433 | 1997 | Polla | Polla; Dennis L. | Costin Erdman Peichel Foldable lens delivery system | (Micro Medical Devices) US5800441 | 1998 | Polla | Polla; Dennis L. | Costin Erdman Peichel Foldable lens delivery system | (Micro Medical Devices) US5914507 | 1999 | Polla | Polla; Dennis L. | Kim PZT microdevice | (University of Minnesota) US5629577 | 1998 | Polla | Polla; Dennis L. | Peichel Erdman Costin Miniature linear motion actuator | (Micro Medical Devices) US5209119 | 1993 | Polla | Polla; Dennis L. | Tamagawa Microdevice for sensing a force | (University of Minnesota) US5536963 | 1996 | Polla | Polla; Dennis L. | Microdevice with ferroelectric for sensing or applying a force | (University of Minnesota) US5208880 | 1993 | Polla | Riza | Polla; Dennis L. Microdynamical fiber-optic switch and method of switching using same | (General Electric Company) US5466932 | 1995 | Polla | Young | Freidhoff Polla; Dennis L. Schiller Micro-miniature piezoelectric diaphragm pump for the low pressure pumping of gases | (Westinghouse Electric Corp.) US5714837 | 1998 | Polla | Zurn | Schiller Polla; Dennis L. Vertical field emission devices and methods of fabrication with applications to flat panel displays
| power | | Power Amplifiers, Converters, Inverters, and Power Factor Correction
| US4554512 | 1985 | Power Amplifier | Aiello | Switching amplifier with MOSFET driver circuit
| US5225789 | 1993 | Power Amplifier | Caine | Kimbrough Four quadrant current mode switching amplifier
| US4096557 | 78 | Power Amplifier | Schwarz | Controllable four quadrant a.c. to a.c. and d.c. converter employing an internal high frequency series resonant link
| US4171512 | 1983 | Power Bipolar | Tsuda; Shin | Circuit for preventing breakdown of a load resulting from wrong connection of a power source | (Reverse battery protection circuit using power bipolar transistor. Works in a similar way to Zaidenweber,4423456. It uses the transistor a kind of backwards way with the collector and emitter swapped to get started.) US4399499 | 1983 | Power Converter | Butcher | Chan Lind Bi-lateral four quadrant power converter
| US4184197 | 1980 | Power Converter | Cuk | Middlebrook DC-to-DC switching converter
| US5903448 | 1999 | Power Converter | Davila | Four quadrant flyback converter, method of operation thereof and power plant employing the same
| US5726870 | 1998 | Power Converter | Lavieville | Bethoux Carrere Meynard Electronic circuit for converting electrical energy
| US4439718 | 1984 | Power Factor Correction | Nola; Frank J. | Motor power control circuit for A.C. induction motors
| US5404093 | 1995 | Power Factor Correction | Cowett | Low distortion alternating current output active power factor correction circuit using capacitor coupled bi-directional switching regulator
| US4649287 | 1987 | Power Factor Correction | Nola; Frank J. | Bidirectional control system for energy flow in solar powered flywheel
| US4417190 | 1983 | Power Factor Correction | Nola; Frank J. | Control system for an induction motor with energy recovery
| US4473792 | 1984 | Power Factor Correction | Nola; Frank J. | Coupling an induction motor type generator to A.C. power lines
| US4388585 | 1983 | Power Factor Correction | Nola; Frank J. | Electrical power generating system
| US4644234 | 1987 | Power Factor Correction | Nola; Frank J. | Four quadrant control circuit for a brushless three-phase d.c. motor
| US4404511 | 1983 | Power Factor Correction | Nola; Frank J. | Motor power factor controller with a reduced voltage starter
| US4459528 | 1984 | Power Factor Correction | Nola; Frank J. | Phase detector for three-phase power factor controller
| US4266177 | 1981 | Power Factor Correction | Nola; Frank J. | Power factor control system for AC induction motors
| US4052648 | 1977 | Power Factor Correction | Nola; Frank J. | Power factor control system for AC induction motors
| US4489243 | 1984 | Power Factor Correction | Nola; Frank J. | Solar powered actuator with continuously variable auxiliary power control
| US4433276 | 1984 | Power Factor Correction | Nola; Frank J. | Three phase power factor controller
| US4469998 | 1984 | Power Factor Correction | Nola; Frank J. | Three-phase power factor controller with induced emf sensing
| US6043965 | 2000 | Power MOSFET | Hazelton | Strayer Low loss reverse battery protection | (Revearse battery protection circuit using a power MOSFET This is a slic use of the reverse current mode of operation in a power MOSSFET, similar to the simulated free wheeling diode in buck regulators.) Reversed Current Flow in MOSFET
US4423456 | 1983 | Power MOSFET | Zaidenweber; Gary A. | Battery reversal protection | (Revearse battery protection circuit using power MOSFETs in an interesting H bridge configuration Medtronic) Reversed Current Flow in MOSFET
pump | | Pumps
| bubblepump | | (Basicly, Bubble Pumps are mostly filled with liquid, | and HeatPipes are mostly filled with vapor.) US4528976 | 1985 | Pump Bubble | Baer; Stephen C. | Thermal Control System For Solar Collector | (Technically not a bubble pump, actually gravity pumped by differential temperatures. The solar receiver dumps heat through a radiator when the system liquid volume exceeds a set point during over temperature conditions. Zomeworks) US4676225 | 1987 | Pump Bubble | Bartera; Ralph | Method and apparatus for enhancing the pumping action of a geyser pumped tube | Flat Plate
US4212593 | 1980 | Pump Bubble | Chadwick; Duane | Heat-powered water pump | (Thermally powered pump. The heat is used to vaporize fluid which acts as a kind of piston to effect pumping with a pair of check valves) Water Pump
US4478211 | 1984 | Pump Bubble | Haine; Eldon | Bartera; Ralph Self-pumping solar heating system with geyser pumping action | (I think this is the Copper Cricket) Flat Plate
US4246890 | 1981 | Pump Bubble | Kraus; Robert A. | Kraus; Edmund J. Passive solar heater fluid pump system | (This pump uses a 2 pipe heat pipe to exchange heat from the thermal transfer fluid to the heated water) Flat Plate
US4959526 | 1990 | Pump Bubble | Kurachi; Yasuhiko | Mori; Kazumi Koizumi; Hisao Storage type electric water heater having a closed circulation loop with a bubble pump | (Electric hot water heater. The pump works like the vertical type engine block heaters.) Water Heater With Bubble Pump
US4552208 | 1985 | Pump Bubble | Sorensen; Wilfred | <bubbleactionpumps@cogeco.ca> Heat actuated system for circulating heat transfer fluids | Bubble Action Pumps Ltd. Sorensen's bubble pump Solar Water
US4607688 | 1986 | Pump Bubble | Sorensen; Wilfred | <bubbleactionpumps@cogeco.ca> Autogenous solar water heater | Bubble Action Pumps Ltd. Sorensen's bubble pump Solar Water
US5351488 | 1994 | Pump Bubble | Sorensen; Wilfred | <bubbleactionpumps@cogeco.ca> Solar energy generator | (Bubble Action Pumps Ltd. Box 1, 121 Counter St. Kingston, Ontario Canada K7K 6C7) Bubble Action Pumps Ltd. Sorensen's bubble pump YouTube video Anamation Solar Water
US3817321 | 1974 | Pump Bubble | von Cube; Hans-Ludwig | Wagner; Edmund Cooling apparatus semiconductor elements, comprising partitioned bubble pump, separator and condenser means | Heat Sink
US7798140 | 2010 | Pump Bubble | van Houten; Arnoud | Adaptive Self Pumping Solar Hot Heating System with Overheat Protection | (Overtemp function is related to Steve Baer above.) Flat Plate
US5080559 | 1992 | Pump Electric | Abbin; Joseph P. | Andraka; Charles E. Lukens; Laurance L. Moreno; James B. Liquid metal electric pump | LMMHD
US3566901 | 1971 | Pump Feed Active | Swedberg | Fuel regulating valve
| US4627241 | 1986 | Pump Feed Passive | Johnston | Closed loop solar collector system powering a self-starting uniflow steam engine | Solar Rankine
US4397300 | 1983 | Pump Feed Passive | Johnston | Closed loop solar collector system with dual chamber fluid supply arrangement | Solar Water
US5685152 | 1997 | Pump Feed Passive | Sterling; Jeffrey Stephen | <info@sterlingsolar.com> Apparatus and method for converting thermal energy to mechanical energy | (Solar collector thermal storage and heat engine system. Very interesting feed liquid pimp with no movind parts. Feed water. Sterling Thermal Power) Liquid Feed Pump
US5974804 | 1999 | Pump Feed Passive | Sterling; Jeffrey Stephen | <info@sterlingsolar.com> Apparatus and method for converting thermal energy to mechanical energy | (Solar collector thermal storage and heat engine system. Very interesting feed liquid pimp with no movind parts. Feed water. Sterling Thermal Power) Liquid Feed Pump
US5203399 | 1993 | Pump Pulse | Koizumi | Heat transfer apparatus
| US4625790 | 1990 | Pump Pulse | Okayasu | Heat transport apparatus
| US5666814 | 1997 | Pump Pulse | Yamamoto | Heat transfer system
| PV | | Photovoltaics
| US7141734 | 2005 | PV | Fork; David K. | Van Schuylenbergh; Koenraad F. Alternating current solar power apparatus | (An alternating current (AC) solar power apparatus includes a photovoltaic cell and a circuit or device for causing a signal generated by the photovoltaic cell to oscillate in a negative differential resistance range, thereby producing an AC output voltage.) AC PV Cell
US4488038 | 1984 | PV | Harrison | Tien Phototransistor for long wavelength radiation
| US5589599 | 1996 | PV | McMullen | McMullen McMullen Pyrolytic conversion of organic feedstock and waste
| US4946512 | 1990 | PV Flat Plate | Fukuroi | Yoshida Ohmura Solar energy collector device | (Roofing tiles with PV and water cooling for domeestic heat.) US3948682 | 1976 | PV High Voltage | Bordina | Zadde Zaitseva et al Semiconductor photoelectric generator
| US4082570 | 1978 | PV High Voltage | House | Irvin Kane High intensity solar energy converter | Stacked PV
US4174561 | 1979 | PV High Voltage | House | Irvin Kane Method of fabricating high intensity solar energy converter
| US4042417 | 1977 | PV High Voltage | Kaplow | Frank Photovoltaic system including a lens structure | (Stacked edge illuminated cells) Stacked PV
US4174978 | 1979 | PV High Voltage | Lidorenko | Evdokimov Zadde et al Semiconductor photovoltaic generator and method of fabricating thereof
| US4228578 | 1980 | PV High Voltage | Lin | Gutsche Collier Method for off-orientation point rotation sawing of crystalline rod material
| US4332973 | 1982 | PV High Voltage | Sater; Bernard L. | High intensity solar cell | (Vertical Multi Junction edge illuminated cells) Stacked PV
US4409422 | 1983 | PV High Voltage | Sater; Bernard L. | High intensity solar cell | (Vertical Multi Junction edge illuminated cells) Stacked PV
US4516314 | 1985 | PV High Voltage | Sater; Bernard L. | Method of making a high intensity solar cell | (Vertical Multi Junction edge illuminated cells) Stacked PV
US5542203 | 1996 | PV Sign | Luoma | Blesener Mobile sign with solar panel | (ADDCO Blesener is from my home town of White Bear Lake.) US5772793 | 1998 | PV Thermophotovoltaic | Ashcroft | Campbell DePoy Tube-in-tube thermophotovoltaic generator
| US5626687 | 1997 | PV Thermophotovoltaic | Campbell | Thermophotovoltaic in-situ mirror cell
| US5753050 | 1998 | PV Thermophotovoltaic | Charache | Baldasaro Egley Thermophotovoltaic energy conversion device
| US5932885 | 1999 | PV Thermophotovoltaic | DeBellis | Scotto Malloy Scoles Hindman Rogers Thermophotovoltaic electric generator | (McDermott Technology, Inc.) US4877553 | 1989 | PV Thermophotovoltaic | Diederich | Gas mantle technology | (TPV Energy Systems, Inc.) US5651838 | 1997 | PV Thermophotovoltaic | Fraas | Avery Samaras Hydrocarbon fired room heater with thermophotovoltaic electric generator | (JX Crystals Inc.) US5512109 | 1996 | PV Thermophotovoltaic | Fraas | Seal West Generator with thermophotovoltaic cells and hydrocarbon burner | (JX Crystals Inc.) US5616186 | 1997 | PV Thermophotovoltaic | Fraas | Williams Samaras Thermophotovoltaic electric generator using low bandgap photovoltaic cells with a hydrocarbon burner and enhanced catalytic infrared emitter | (JX Crystals Inc.) US5560783 | 1996 | PV Thermophotovoltaic | Hamlen | Thermophotovoltaic generator
| US4707560 | 1987 | PV Thermophotovoltaic | Hottel | Nelson Parent Thermophotovoltaic technology | (TPV Energy Systems, Inc.) US4750943 | 1988 | PV Thermophotovoltaic | Nelson | Thermophotovoltaic system | (TPV Energy Systems, Inc.) US4584426 | 1986 | PV Thermophotovoltaic | Nelson | Thermophotovoltaic technology | (Gillette) US4826426 | 1989 | PV Thermophotovoltaic | Nelson | Thermophotovoltaic technology | (TPV Energy Systems, Inc.) US5797997 | 1998 | PV Thermophotovoltaic | Noreen | Oxygen producing thermophotovoltaic systems
| US5512108 | 1996 | PV Thermophotovoltaic | Noreen | Thermophotovoltaic systems
| US4836862 | 1989 | PV Thermophotovoltaic | Pelka | Popovich Fleishman Thermophotovoltaic system
| US5932029 | 1999 | PV Thermophotovoltaic | Stone | Schneider Schmitt Solar thermophotovoltaic power conversion method and apparatus | (McDonnell Douglas Corporation) US4316048 | 1982 | PV Thermophotovoltaic | Woodall | Energy conversion | (IBM) US4316448 | 1982 | PV Trough | Dodge | Solar energy concentrator system | (Similar to the Carrizo Planes defunct solar power station. The mirrors are set at 60 degrees.) 2X PV
pyrolysis | | Thermal cracking of feed stocks into combustible gases
| rankine | | Rankine Heat Engines
| US3901036 | 1975 | Rankine Boiler | Martin | Two fluid solar boiler | Solar Boiler
US4760705 | 1988 | Rankine Boiler | Yogev | Mahlab Rankine cycle power plant with improved organic working fluid | (Neucler powered power plant Ormat Turbines Ltd.) Solar Boiler
US5685152 | 1997 | Rankine Engine | Sterling; Jeffrey Stephen | <info@sterlingsolar.com> Apparatus and method for converting thermal energy to mechanical energy | (Solar collector thermal storage and heat engine system. Very interesting feed liquid pimp with no movind parts. Feed water. Sterling Thermal Power) Liquid Feed Pump
US5974804 | 1999 | Rankine Engine | Sterling; Jeffrey Stephen | <info@sterlingsolar.com> Apparatus and method for converting thermal energy to mechanical energy | (Solar collector thermal storage and heat engine system. Very interesting feed liquid pimp with no movind parts. Feed water. Sterling Thermal Power) Liquid Feed Pump
receiver | | Solar Receiver
| US4529830 | 1985 | Receiver Thermal | Daniel | Apparatus for collecting, distributing and utilizing solar radiation
| US4683872 | 1987 | Receiver Thermal | Fricker | Receiver for solar energy | Solar Turbine
US5143053 | 1992 | Receiver Thermal Flat Plate | Baer; Stephen C. | Solar collector tube plate | (Fin Tube Zomeworks) US5743330 | 1998 | Receiver Thermal Flat Plate | Bilotta | Shaw Radiant heat transfer panels | (Fin Tube Radiant Technology very siminar to Baer for use with PEX flexible tubing.) US4782889 | 1988 | Receiver Thermal Flat Plate | Bourne | Solar collector tube plate | (Fin Tube) US4076025 | 1978 | Receiver Thermal Flat Plate | Parker | Solar steam boiler | (Neat recirculating air insulation.) US4308858 | 1982 | Receiver Thermal Flat Plate | Skillman | Solar energy collecting apparatus and methods | (Collector built into the roof) US4390010 | 1983 | Receiver Thermal Flat Plate | Skillman | Solar energy collecting apparatus and roll-formed metal building | (Collector built into the roof) US4467786 | 1984 | Receiver Thermal Solar Pond | Sorensen; Jens | Solar heating of water utilizing coverites. | (Insulation for a solar pond) refrigeration | | Refrigeration or Air-conditioning
| US1953216 | 1934 | Refrigeration Refrigerants | ? | ? | ( <Robert L. McWilliams III >in an email to me wrote: I did some serious and time consuming digging around, but I think I have at least narrowed down the time frame. The earliest reference I have to a patent for dichlorodifluoromethane (CFC-12, R-12, Freon 12) is 1934. It was originally patented by a joint venture company formed by E.I. DuPont de Nemours and General Motors. Freon was originally trademarked in 1931 by E.I. DuPont de Nemours and covered all of their halocarbon products. Allied Chemical Corporation began producing its own dichlorodifluoromethane in September 12, 1951 under the trade name of Genetron. 1951 - 1934 = 17, the number of years granted an original patent so 1934 looks like the year that R-12 was patented. The original patent number is 1,953,216. DuPont) US3956904 | 1976 | Refrigeration Refrigerants | Edwards; Thomas | Compressor-expander for refrigeration having dual rotor assembly | (Uses air as the refrigerant The Rovac Corporation) US6056891 | 2000 | Refrigeration Refrigerants | Goble; George H. | Drop-in performance increasing substitute for 1,1,1,2-tetrafluoroethane refrigerant | (George Goble) US5214929 | 1993 | Refrigeration Refrigerants | Goble; George H. | Drop-in substitute for dichlorodifluoromethane refrigerant | (George Goble) US5151207 | 1992 | Refrigeration Refrigerants | Goble; George H. | Drop-in substitute for dichlorodifluoromethane refrigerant | (George Goble) US5954995 | 1999 | Refrigeration Refrigerants | Goble; George H. | Drop-in substitutes for 1,1,1,2-tetrafluoroethane (R-134a) refrigerant | (George Goble) US6214651 | 2001 | Refrigeration Thermionic | Cox; Isaiah Watas | Doped diamond for vacuum diode heat pumps and vacuum thermionic generators | (See Borealis Technical Limited) US6090893 | 2000 | Refrigeration Thermionic | Edelson; Jonathan Sydney | Method and apparatus for vacuum diode heat pump | (See Borealis Technical Limited) US6089311 | 2000 | Refrigeration Thermionic | Edelson; Jonathan | Method and apparatus for vacuum diode heat pump | (See Borealis Technical Limited) robotics | | Robotics
| US5325031 | 1994 | Robotics | Tilden; Mark W. | Adaptive robotic nervous systems and control circuits therefor | (See BEAM - Robotics - Tek) Nervous Network
scroll | | Scroll Compressors, Expanders, or Engines
| US4522574 | 1985 | Scroll | Arai | Maeda Balancing weight device for scroll-type fluid machine
| US3817664 | 1974 | Scroll | Bennett | Hatfield Rotary fluid pump or motor with intermeshed spiral walls | Scroll Sequence
US5094205 | 1992 | Scroll | Billheimer | Scroll-type engine
| US4877382 | 1989 | Scroll | Caillat | Weatherston Bush Scroll-type machine with axially compliant mounting
| US4781549 | 1988 | Scroll | Caillat | Modified wrap scroll-type machine | Thick Scroll
US801182 | 1905 | Scroll | Creux | Rotary Engine | (I believe this is the origional patent for a scroll mechanism.) Origional Scroll
US4431388 | 1984 | Scroll | Eber | Utter Controlled suction unloading in a scroll compressor
| US4738111 | 1988 | Scroll | Edwards | Power unit for converting heat to power | Scroll Engine
US4436465 | 1984 | Scroll | Fukushima | Fukuhara Hiraga Scroll manufacturing tool
| US4497615 | 1985 | Scroll | Griffith | Scroll-type machine
| US4696084 | 1987 | Scroll | Hirano | Fukami Maruiwa Itoh Sugimoto Ono Mukai Method for forming scroll members used in a scroll type fluid machine | Rounded Edges
US4666380 | 1987 | Scroll | Hirano | Fukami Maruiwa Itoh Sugimoto Ono Mukai Scroll type fluid machine with prevention of stress concentration
| US5362211 | 1994 | Scroll | Iizuka | Ochiai Scroll type fluid displacement apparatus having a capacity control mechanism
| US5873707 | 1999 | Scroll | Kikuchi | Fluid displacement apparatus with variable displacement mechanism
| US5860791 | 1999 | Scroll | Kikuchi | Scroll compressor with end-plate valve having a conical passage and a free sphere
| US4673340 | 1987 | Scroll | Mabe | Negishi Variable capacity scroll type fluid compressor
| US4904164 | 1990 | Scroll | Mabe | Terauchi Scroll type compressor with variable displacement mechanism
| US5240388 | 1993 | Scroll | Matsumoto | Tsukagoshi Scroll type compressor with variable displacement mechanism
| US4892469 | 1990 | Scroll | McCullough | Dieckmann Hosmer Compact scroll-type fluid compressor with swing-link driving means
| US4512066 | 1985 | Scroll | McCullough | Method of fabricating scroll members
| US4129405 | 1978 | Scroll | McCullough; John E. | Scroll-type liquid pump with transfer passages in end plate | (The scrolls only wrap 360 degrees so there is only pumping action without compression) Liquid Scroll Pump
US5293850 | 1994 | Scroll | Nishida | Scroll type rotary internal combustion engine
| US5775888 | 1998 | Scroll | Sakamoto | Komai Hidano Kobayashi Scroll fluid machine having end plate with greater center thickness | Air Compressor Scroll
US4326391 | 1982 | Scroll | Sato | Arai Tanaka Fukushima Fukushima Rankine-cycle-engine-driven cooling-and-heating system
| US4747756 | 1988 | Scroll | Sato | Mabe Terauchi Scroll compressor with control device for variable displacement mechanism
| US4717314 | 1988 | Scroll | Sato | Mabe Terauchi Scroll compressor with control device for variable displacement mechanism
| US4886434 | 1989 | Scroll | Satow | Masuda Sugimoto Muta Scroll compressor having discharge part communicating with two compression spaces simultaneously
| US4505651 | 1985 | Scroll | Terauchi | Kawano Mabe Scroll type compressor with displacement adjusting mechanism
| US4744733 | 1988 | Scroll | Terauchi | Mabe Scroll type compressor with variable displacement mechanism
| US4642034 | 1987 | Scroll | Terauchi | Scroll type compressor with displacement adjusting mechanism
| US3802809 | 1974 | Scroll | Vulliez | Completely dry and fluid-tight vacuum pumps | Vacuum Scroll
US4940395 | 1990 | Scroll | Yamamoto | Mabe Scroll type compressor with variable displacement mechanism
| US4773144 | 1988 | Scroll | Youtie | Method of manufacture of scroll compressors and expanders
| stereolithography | | Three Dimentional Manufacturing of products.
| US4863538 | 1989 | Stereolithography | Deckard | Method and apparatus for producing parts by selective sintering
| US4575330 | 1986 | Stereolithography | Hull | Apparatus for production of three-dimensional objects by stereolithography
| stirling | | Stirling Engines
| US5457956 | 1994 | Stirling | Bowman; Lyn | Berchowitz; David M. Urieli; Israel Microminiature stirling cycle cryocoolers and engines
| US4599551 | 1984 | Stirling Acoustic | Wheatley; John C. | Swift; Gregory W. Migliori; Albert Thermoacoustic magnetohydrodynamic electrical generator
| US6062023 | 1998 | Stirling Engine | Kerwin; John | Owens; Kingston Norris; Michael Kamen; Dean L. Duggan; Tim Langenfeld; Christopher C. Cantilevered crankshaft stirling cycle machine | (It looks like this whole engine can be built with simple lathe tools.) Kamen Crank Case
US4450754 | 1984 | Stirling Engine | Liljequist, Jon L. | Mechanical arrangements for piston-crankshaft devices | (This is an interesting way to get Stirling motions) Crank and Eccentric
US5901556 | 1997 | Stirling Refrigeration | Hofler; Thomas J. | High-efficiency heat-driven acoustic cooling engine with no moving parts | (Thermoacoustic) US4953366 | 1989 | Stirling Refrigeration | Swift; Gregory W. | Martin; Richard A. Radenbaugh; Ray Acoustic cryocooler | (Thermoacoustic) US4602614 | 1983 | Stirling Solar | Percival; Worth H. | Wells; David N. <laseraxe@erols.com> Hybrid solar/combustion powered receiver | (One of David Wells' patents.) Hybrid Stirling
US4475538 | 1983 | Stirling Solar | Percival; Worth H. | Wells; David N. <laseraxe@erols.com> Window for solar receiver for a solar-powered hot gas engine | (One of David Wells' patents.) Hybrid Stirling
storage | | Solar Storage Methods
| US4194496 | 1980 | Storage Thermal | Carlson | Solar heat storage systems | (Carlson is from my home town of White Bear Lake.) US4455153 | 1984 | Storage Chemical | Jakahi | Apparatus for storing solar energy in synthetic fuels | (Heliostat) US4613444 | 1986 | Storage Chemical | Lane; George A. | Rossow; Harold E. Reversible phase change compositions of calcium chloride hexahydrate with potassium chloride
| US4872442 | 1989 | Storage Thermal | Manker; Charles F. | Activator for initiating reaction in a heat pack and method for making same | (See Heat and Comfort, Prism Technologies) US4880953 | 1989 | Storage Thermal | Manker; Charles F. | Method of recharging a heat pack by microwave energy | (See Heat and Comfort, Prism Technologies) US4402306 | 1983 | Storage Thermal | McElroy Jr.; Robert C. | Thermal energy storage methods and processes
| US4265224 | 1981 | Storage Thermal | Meyer; Stanley A. | Multi-stage solar storage system | (Ya, the wacco run a car on water guy) Thermal Storage
US4291755 | 1981 | Storage Chemical | Minto; Wallace L. | Method and apparatus for accumulating, storing and releasing thermal energy
| US4403643 | 1983 | Storage Thermal | Minto; Wallace L. | Method and apparatus for accumulating, storing and releasing thermal energy
| US5710504 | 1998 | Storage Battery Equalization | Pascual; Cesar | Krein; Philip T. Switched capacitor system for automatic battery equalization | (A switched capacitor system for automatic battery equalization can be used with series coupled batteries as well as primary and backup batteries which are alternately couplable to a load. The system includes a plurality of capacitors and a plurality of switching elements.) Battery Equalization
US6060198 | 1998 | Storage Battery | Snaper; Alvin A. | Electrochemical battery structure and method | (An improved battery, the "Power Battery" (patented), which has a unique internal structure and electrochemistry. Power Technology ) US3981151 | 1976 | Storage Thermal | St. Clair | Use of solar energy heat gathering and storing systems to increase farm crop yields | (Heliostat to store solar energy for later use in agricultural ilumination) Agricultural Heliostat
sundials | | Sundials
| US4255864 | 1981 | Sundials | Glendinning; Scott R. | Sun clock | US4782472 | 1988 | Sundials | Hines; Stephen P. | Solar clock with digital time display | (Uses fiber optics) Digital Sundial
US5596553 | 1997 | Sundials | Kellogg; Robert L. | Digital sundial | Digital Sundial
US5590093 | 1996 | Sundials | Scharstein; Hans | Krotz-Vogel; Werner Scharstein; Daniel Digital sundial | (Digital Sundials International ) Digital Sundial
thermionic | | Thermionic (Similar principal to the cathode in electronic vaccuum tubes.)
| US4188571 | 1980 | Thermionic | Brunson | Radiant energy to electrical power conversion system | Solar Dish
US4528417 | 1985 | Thermionic | Chubb | Thermionic-photovoltaic energy converter
| US6214651 | 2001 | Thermionic | Cox; Isaiah Watas | Doped diamond for vacuum diode heat pumps and vacuum thermionic generators | (See Borealis Technical Limited) US5981071 | 1999 | Thermionic | Cox; Rodney | Doped diamond for vacuum diode heat pumps and vacuum diode thermionic generators | (Similar principal to the cathode in electronic vaccuum tubes. See Borealis Technical Limited) US6064137 | 2000 | Thermionic | Cox; Rodney | Method and apparatus for a vacuum thermionic converter with thin film carbonaceous field emission | (See Borealis Technical Limited) US4303845 | 1979 | Thermionic | Davis | Thermionic electric converter
| US5780954 | 1998 | Thermionic | Davis | Thermionic electric converters
| US5942834 | 1999 | Thermionic | Davis | Thermionic electric converters
| US3807827 | 1974 | Thermionic | De Steese | Bowey Means and method of processing reservoirless thermionic converters
| US6103298 | 2000 | Thermionic | Edelson; Jonathan Sidney | Cox; Isaiah Watas Method for making a low work function electrode | (Similar principal to the cathode in electronic vaccuum tubes. See Borealis Technical Limited) US5874039 | 1999 | Thermionic | Edelson; Jonathan | Low Work-Function Electrode | (Similar principal to the cathode in electronic vaccuum tubes. See Borealis Technical Limited) US5810980 | 1998 | Thermionic | Edelson; Jonathan | Low Work-Function Electrode | (Similar principal to the cathode in electronic vaccuum tubes. See Borealis Technical Limited) US5722242 | 1998 | Thermionic | Edelson; Jonathan | Method and apparatus for improved vacuum diode heat pump | (Similar principal to the cathode in electronic vaccuum tubes. See Borealis Technical Limited) US5973259 | 1999 | Thermionic | Edelson; Jonathan | Method and Apparatus for Photoelectric Generatioons of Electricity | (Similar principal to the cathode in electronic vaccuum tubes.) Construction
US5994638 | 1999 | Thermionic | Edelson; Jonathan | Method and Apparatus for thermionic generator | (See Borealis Technical Limited) US5675972 | 1997 | Thermionic | Edelson; Jonathan | Method and apparatus for vacuum diode-based devices with electride-coated electrodes | (Similar principal to the cathode in electronic vaccuum tubes. See Borealis Technical Limited) Design
US5981866 | 1999 | Thermionic | Edelson; Jonathan | Process for Stampable Photoelectric Generator | (Similar principal to the cathode in electronic vaccuum tubes. See Borealis Technical Limited) Stampable
US4667126 | 1987 | Thermionic | Fitzpatrick | Thermionic converter
| US5028835 | 1991 | Thermionic | Fitzpatrick | Thermionic energy production
| US4168716 | 1979 | Thermionic | Fowler | Israel Solar-powered thermionic-photoelectric laser
| US5578886 | 1996 | Thermionic | Holmlid | Svensson Collector for thermionic energy converter covered with carbon like material and having a low electronic work function
| US5492570 | 1996 | Thermionic | Horner-Richardson | Anderson Hybrid thermal electric generator | (See Thermacore, Inc.) Seriesed
US5219516 | 1993 | Thermionic | Horner-Richardson | Ernst Thermionic generator module with heat pipes | (See Thermacore, Inc.) With Heat Pipes
US5598062 | 1997 | Thermionic | Iigami | Transparent photocathode
| US5541464 | 1996 | Thermionic | Johnson | LeVert Thermionic generator
| US4040903 | 1977 | Thermionic | Monroe | Thermionic energy converters | (Converter modules, shapped like "D" cell bateries, stack in tubes forming series strings) US4373142 | 1983 | Thermionic | Morris | Thermionic energy converters
| US3983423 | 1976 | Thermionic | Rasor | Britt Thermionic converter
| US4126149 | 1978 | Thermionic | Reitz | Solar energy electrical conversion apparatus
| US4355195 | 1982 | Thermionic | Sansbury | Electromagnetic solar cell
| US4094703 | 1978 | Thermionic | Williams | Solar energy converter
| US4251679 | 1981 | Thermionic | Zwan | Electromagnetic radiation transducer
| US6089311 | 2000 | Thermionic Refrigeration | Edelson; Jonathan | Method and apparatus for vacuum diode heat pump | (See Borealis Technical Limited) thermoacoustic | | Thermoacoustic
| US5892293 | 1999 | Thermoacoustic Generator Electric | Lucas | RMS energy conversion. | (Thermoacoustic) US4599551 | 1986 | Thermoacoustic MHDG | Wheatley | Swift Migliori Thermoacoustic magnetohydrodynamic electrical generator
| US5165243 | 1992 | Thermoacoustic Refrigeration | Bennett | Compact acoustic refrigerator | (Thermoacoustic) US5901556 | 1999 | Thermoacoustic Refrigeration | Hofler | High-efficiency heat-driven acoustic cooling engine with no moving parts | (Thermoacoustic) US4953366 | 1990 | Thermoacoustic Refrigeration | Swift | Martin Radenbaugh Acoustic cryocooler | (Thermoacoustic) US4858441 | 1989 | Thermoacoustic Refrigeration | Wheatley | Swift Migliori Hofler Heat-driven acoustic cooling engine having no moving parts | (Thermoacoustic) US5813234 | 1998 | Thermoacoustic Refrigeration | Wighard; Herbert F. | Double acting pulse tube electroacoustic system | (Thermoacoustic) thermoelectric | | Thermoelectric generators
| US5065085 | 1991 | Thermoelectric | Aspden | Strachan Thermoelectric energy conversion
| US5936193 | 1999 | Thermoelectric | Parise | Nighttime solar cell
| US5356484 | 1994 | Thermoelectric | Yater | Yater Yater Reversible thermoelectric converter
| tracker | | Solar Trackers
| US4445030 | 1984 | Tracker Electronic | Carlton; Richard J. | Tracking arrangement for a solar energy collecting system | (Tracker that is stationary and controls a concentrator that moves. Position of the concentrator is set with an Inclinometer. Acurex Corp) Hybrid Stirling
US4883340 | 1988 | Tracker Electronic | Dominguez; Richard L. | Solar lighting reflector apparatus having slatted mirrors and improved tracker | (Heliostat lighting tracker. Used in a skylite) Heliostat Tracker
US5914483 | 1997 | Tracker Electronic | Fallon; James J. | Fallon; Gerald Sun Sensor | Sensor
US5829427 | 1997 | Tracker Electronic | Gallois-Montbrun; Roger | Orientable pyramid-shaped solar collector device
| US6018122 | 1997 | Tracker Electronic | Hibino; Kouetsu | Tange; Kyoichi Nagashima; Tomonori Tracking solar module | Optical Tracker
US5977475 | 1997 | Tracker Electronic | Hibino; Kouetsu | Converging solar module | ( Cylindrical refractive optics. See figure 4)
US5023440 | 1990 | Tracker Electronic | Kuppenheimer; John D. | Tracker using angle-converting cones | (CPC, compound parabolic concentrator, cones observe diifferential portions of the sky) CPC Tracker
US4267441 | 1981 | Tracker Electronic | Monk; Robert J. | Energy rays tracking device | (Complete circuit diagram. Fairly complex and outdated but the idea is there) US6089224 | 1999 | Tracker Electronic | Poulek; Vladislav | Apparatus for orientation of solar radiation collectors | (Very simple solar tracker based on a pair of solar panels connected Back to Back. Back to Back Solar Panels
US20140352757 | 2014 | Solar Tracker | Ramirez; John | <mobilenergies@gmail.com> Smart modular automated multi access axis case for solar modules, panels, electronic display ssensors and the like | (This alternative hybrid wind concentrator generator provides low wind environments with improved added capabilities for various power generation applications.) Solar Tracker
US4361758 | 1982 | Tracker Electronic | Rotolo; Guglielmo E. | Sun position sensor for two axis tracking | (Tracker for a geodesic dome) US4276872 | 1981 | Tracker Electronic Inline | Blake; Floyd A. | Northrup, Jr.; Lynn L. Solar system employing ground level heliostats and solar collectors | (Heliostat and inline optical tracker) Inline Tracker
US3906927 | 1975 | Tracker Electronic Inline | Caplan; Harry W. | Solar-thermal power system employing adjustable curvature reflective panels and method of adjusting reflective panel curvature | (Heliostat with mechanically adjustable flat mirrors. The tracker uses inline sensors) Inline Tracker
US4519382 | 1985 | Tracker Electronic Inline | Gerwin; Harry L. | Control system for heliostats and method | (The tracking controller observes a reflected image of the sun. Similar to Hedger except the tracker is near the receiver) Inline Tracker
US4063543 | 1977 | Tracker Electronic Inline | Hedger; John Henry | Servo tracking apparatus | (Tracks by looking at the position of the sun reflected in the mirror. Similar to Gerwin except the tracker is near each heliostat) Inline Tracker
US5979438 | 1998 | Tracker Electronic Inline | Nakamura; Katsushige | Sunlight collecting system | (Describes a secondary Gregorian mirror and a tertiary compound parabolic concentrator receiver, and inline tracker.) Array Inline Tracker
US4172443 | 1979 | Tracker Electronic Inline | Sommer; Warren T. | Central receiver solar collector using analog coupling mirror control | (Tracking by means of placing a 2 axis sensor in align and in between the mirror and the receiver. Also describes several interesting mirror movement mechanisms including cable systems. The mount looks like my Goofy Dual Axis Tracking Mount.) Inline Tracker
US4223214 | 1980 | Tracker Electronic MPPT | Dorian; Mark E. | Nelson; David H. Solar tracking device | (Tracking movement of collector by maximizing power output as in an MPPT. Operates on 2 axes. See West) US4868379 | 1988 | Tracker Electronic MPPT | West; Rick | Photovoltaic array with two-axis power maximization tracking | (Tracking movement of collector by maximizing power output as in an MPPT. Operates on 2 axes. See Dorian) US6704607 | 2001 | Tracker Electronic Open Loop | Stone; Kenneth Ayne | Kiefer; James A. Method and apparatus for controllably positioning a solar concentrator | (Using the open loop method. See the bibliography for calculating the sun's position) US4564275 | 1984 | Tracker Electronic Open Loop | Stone; Kenneth W. | Automatic heliostat track alignment method | (Using the open loop method. See the bibliography for calculating the sun's position) US7309926 | 2004 | Tracker Electronic Open Loop | Watt; Stephen Bruce | Solar-powered pumping device | (Using the open loop method. This patent can not be supported as claim 1 is invalid. Prior art for the concept of using a radio controlled accurate time clock has been described by at least me and others many years before Watts filing date. Also see patent US4215410 Column 8 line 47. I love to break patents!) US4215410 | 1980 | Tracker Electronic Open Loop | Weslow; Jerome H. | Rodrian; James A. Solar tracker | (Using the open loop method. See the bibliography for calculating the sun's position) US7207327 | 2004 | Tracker Electronic Retroreflector | Litwin; Robert Z. | Meister; Christopher D. Feedback control method for a heliostat | (Heliostat tracking sensor using Retro Reflectors, something similar to the manual heliostat optical sensor we used on the heliostat array to send light up to the Kansas City Space Pirates, KCSP, space tether climber.) Heliostat Tracking Sensor using Retro Reflectors
US4349733 | 1982 | Tracker Electronic Shadow | Beam; Benjamin H. | Beam; Richard M. Sun tracker | (Simple single axis. Two sensors with a divider blade) Shadow Tracker
US4649899 | 1985 | Tracker Electronic Shadow | Moore; Roy A. | Solar tracker | (2 axis tracker for a Fresnel solar array. Interesting method of making light sensor shadow mask) Shadow Tracker
US6897423 | 2002 | Tracker Electronic Shadow | Redler; Michael H. | <redlerm@yahoo.com> Rader; Dennis Self-powered intermittent moving light tracking device and method | (Escentially a Receiver Axis Heliostat Mount with Shadow Blocker sensor) Receiver Axis Mechanism
US6005236 | 1995 | Tracker Electronic Shadow | Phelan; John J. | Phelan; Joseph P. Miller Automatic sun tracking apparatus | (This circuit is almost exactly the same as a tracker I built in about 1972) Shadow Tracker
US3996460 | 1976 | Tracker Electronic Shadow | Smith; Peter D. | Solar tracking control system using shadow detection | ( Shadow tracker with the sensors on the inside of a box) Shadow Tracker
US4262195 | 1981 | Tracker Electronic Shadow | White; Paul R. | Scott; Donald R. Solar tracking system | (Dish tracker using differential light sensors) Shadow Tracker
US4107521 | 1978 | Tracker Electronic Shadow | Winders; Gordon Robert | Solar sensor and tracker apparatus | (Differential light sensor driving a reversible AC capacitor run motor. The electronics operate very similarly to my LED3 tracker.) Shadow Tracker
US4146784 | 1979 | Tracker Electronic Shadow | Yekutieli; Gideon | Sun tracking device | (Inline heliostat optical tracker. Figure 5 is a shadow tracker) Shadow Tracker
US5862799 | 1997 | Tracker Electronic Shadow | Yogev; Amnon | Krupkin; Vladimir Control of a heliostat field in a solar energy plant | (Feedback control system for adjusting a field of heliostats. Similar to Gerwin except the tracker operates multiple heliostats. Also similar to a system I have been thinking about) Heliostat Shadow Tracker
US4190766 | 1980 | Tracker Electronic Shadow | Young; Danny J. | Sun tracking system | (Inline heliostat optical tracker.) Shadow Tracker
US4013885 | 1977 | Tracker Electronic Signaling | Blitz; Daniel | Solar energy sun tracker | (Operates in a similar way to an emergency signaling mirror. See Vaerewyck) Signaling Mirror Tracker
US4211922 | 1978 | Tracker Electronic Signaling | Vaerewyck; Eugene G. | Miller; Robert C. Anderson; Arthur E. Heliostat guidance | (Uses the solar angle bisection method with a linear image sensor. Operates in a similar way to an emergency signaling mirror. See Blitz Westinghouse Electric Corp.) Signaling Mirror Tracker
US5877874 | 1997 | Tracker Holographic | Rosenberg; Glenn A. | Device for concentrating optical radiation | (Using holograms and passive solar tracking. Operates in a similar manner to Luminescent Concentrators but with the advantage of utilizing a wider spectrum.) Holographic TrackerUS2460482 | 1945 | Concentrator Dish | Abbot; | Charles Greeley Solar Heat Collector | (Dish on a Tripod mount) Tripod Mount
US20140216522 | 2012 | Tracker Mechanical | Au; Alexander W. | Horizontal balanced solar tracker | (North/South Horizontally oriented Tracking Mount. Was Solaria, now NEXTracker. The main advantage of the mount is the ability to use a long continuous panel support beam. This beam is essentially supported from a hanger bearing outside the periphery of the beam. This is close to what I'm doing on my version of a N/S Horizontal Tripod Mount.) N/S Horizontal Mount
US4476854 | 1984 | Tracker Mechanical | Baer; Stephen C. | Gas spring solar tracker | (Zomeworks) US4175391 | 1979 | Tracker Mechanical | Baer; Stephen C. | Self reorienting solar tracker | (Liquid mass transfer Zomeworks Compound Parabolic Concentrator) Liquid Mass Transfer
US3884414 | 1975 | Tracker Mechanical | Baer; Stephen C. | Solar heating device | (Zomeworks) Liquid Mass Transfer
US4505255 | 1985 | Tracker Mechanical | Baer; Stephen C. | Summer/winter solar control system | (Zomeworks) Liquid Mass Transfer
US5600124 | 1994 | Tracker Mechanical | Berger; Alexander | Sun tracker system for a solar assembly
| US5730117 | 1995 | Tracker Mechanical | Berger; Alexander | Sun tracker | Tracker
US5798517 | 1997 | Tracker Mechanical | Berger; Alexander | Sun tracker system for a solar assembly
| US4149777 | 1977 | Concentrator Heliostat | Bunch; Jesse C. | Radiation concentrating system | (Heliostat beveled gear bisector angle mechanism) Beveled Gear Angle Bisector bunch4 Interior Gear Angle Bisector
US4110009 | 1978 | Tracker Mechanical | Bunch; Jesse C. | Heliostat apparatus | (Heliostat actuation scheme that uses parallelogram linkages) Heliostat Array bunch5
US4218114 | 1980 | Tracker Mechanical | Bunch; Jesse C. | Heliostat apparatus | (Heliostat actuation scheme that uses parallelogram linkages) Linked Mirrors bunch6
US4870949 | 1987 | Tracker Mechanical | Butler; Barry L. | Wind resistant two axis tracker for energy or radiation concertrators | Heliostat Array
US20110265784 | 2010 | Tracker Mechanical | Chang; Kuei-Hsiang | Chang; Ching-Lang Solar tracker | (Very interesting, essentially a pair of gear driven cams. There is great mechanical advantage at the extremes of motion. Note! although the speed of rotation is not constant throughout the day the mechanical advantage occurs when the wind load is greatest.) Gear Arrangement
US3630020 | 1971 | Tracker Mechanical Bimetallic | Chase; Thomas H. | Weigel; Robert M. Solar Orientation Device | (The bimetallic elements, through linkages, rotate a crankshaft in a way to orient equipment continuously toward the sun. Cool device!!!) Bimetallic Device
US8100122 | 2009 | Tracker Mechanical | U-Joint Collins; Kenneth D. | Collins; Foster D. Solar Roof Tracker | (Mechanical tracker based on the U-joint mechanism.) Array of U-Joint Mounts
US4317031 | 1982 | Tracker Mechanical | Findell; Max | Central focus solar energy system | Tracker
US20140124015 | 2013 | Tracker Mechanical Bimetallic???? | Full; Eden | Systems and Methods for Weight-Based Repositioning of Solar Energy Collection Devices | (This is the 19 year old from Princeton making a big splash about a $10 all mechanical solar tracker. We'll see. Now that I have seen the patent it doesn't appear to use bimetallic elements as stated in the article. It now appears to be "Simply Controlled Weight Transfer". Clean Technica Eden Full's website. Nearly all aspects have been demonstrated long before Full did this. Especially designs published on the UseNet by Brian White long ago. This is hopelessly simplistic in design and concept. It's construction is mechanically very "loose" when the wind blows on it. Good designs need to be mechanically very "Stiff" so high winds won't damage it. The building code usually requires a horizontal wind pressure of 10 lbs/ft2 Weight Transfer Tracker
US3945015 | 1976 | Tracker Mechanical | U-Joint Gueguen; Michel | Satellite tracking antenna having a dish moveably supported at three points | (Mechanical tracker based on the U-joint mechanism. Similar to the Sallis (1990) heliostat and Solomon (1982) dish.) U-joint Mechanism
US4226502 | 1980 | Tracker Mechanical Bimetallic | Gunzler; Thomas | Self-contained Bimetallic solar tracking device
| US4167936 | 1979 | Tracker Mechanical Bimetallic | Hackworth; Albert J. | Static solar tracker and energy converter | (Bimetallic strip movement) Bimetallic
US4628142 | 1986 | Tracker Concentrator Trough | Hashizume; Kenichi | Solar tracking mechanisms | (Bimetallic spring movement. The thermal sensors look similar to Baer's weight transfer mechanism.) Bimetallic
US6563040 | 2001 | Tracker Mechanical Tripod | Hayden; Herbert T. | Shingleton; Jefferson G. Structure for supporting a photovoltaic module in a solar energy collection system | ("2 Pivot Tripod Tracking Mount" Basically a tripod mount. Note! this patent can not be enforced as I published and demonstrated a nearly identical tripod mount at the 2001 MREA solar fair on or about June 21st. I was located nest to the founder of "Zap Motors". Thousands witnessed it, maybe Haydon or Shingleton did too. Mine even had the rope tie down feature. The Internet "Wayback Machine" says they last archived my page on July 17th 2001. My Webpage says it was last edited on July 6th. What were they thinking?) Tripod theirs My Tripod demonstrated at the MREA solar fair on the Amherst Fair Grounds. 44.449343,-89.298682 Tripod mine Tripod mineSouthwest Solar Technologies, Inc. Shingleton Design, LLC US20120222372 | 2009 | Tracker Mechanical Tripod | Hilber; Franz | Adjusting device of a stationary photovoltaic system | ("3 Pivot Tripod Tracking Mount" A method to get dual axis motion with a single actuator and a kind of latching mechanism at 2 separated pivot points. Very similar to a Tripod Mount, except with 2 low end pivots instead of 1. Which pivot is engaged is shown in figures 188a & 18b, the operation is described in paragraphs 112-114. Hilber Solar) 3 Pivot Point Tripod Tracking Mount An anime Latching Pivot
US4368962 | 1983 | Tracker Mechanical Clockwork | Hultberg; Donald E. | Solar tracking apparatus and system | (Neat all mechanical Rube Goldberg using gears and cranks. Best used for solar instrumentation) Gears
US3951510 | 1976 | Tracker Mechanical | Lloyd; Wayne B. | Inertially stabilized heliostat assembly
| US4367913 | 1983 | Tracker Mechanical | Logan; Dale R. | Buckley; John J. Inertially dampened heliostat assembly
| US3678685 | 1972 | Tracker Mechanical Bimetallic | Low; George M. | Crawford; Ralph Solar Energy Powered Heliotrope | (Bimetallic strip movement) US5622078 | 1995 | Tracker Mechanical | Mattson; Brad A. | Linear/helix movement support/solar tracker | (See picture) ![]()
US5512742 | 1993 | Tracker Mechanical | Mattson; Brad A. | Solar energy and tracking system | (See picture)
US3213285 | 1965 | Tracker Mechanical Bimetallic | Mccusker; Thomas J. | Heliotropic Orientation Mechanism | ( Bimetallic actuation.) US3446998 | 1969 | Tracker Mechanical Bimetallic | Murphy; Franklin L. | Bimetallic Power Controlled Actuator | (Bimetallic actuation.) US4586488 | 1983 | Tracker Mechanical Half Angle | Noto; Vincent H. | Reflective solar tracking system | (Half angle tracker employing gears. Similar to that describes to me by Jerimiah Chace. Receiver Axis Mount) Half angle tracker, single axis
US5945961 | 1998 | Tracker Mechanical | U-Joint Price; Russell E. | Gastonguay; Raymond J. Antenna dias system having constrained rotational movement | (Mechanical tracker based on the U-joint mechanism. Similar to the Sallis (1990) heliostat and Solomon (1982) Dish.) U-joint Mechanism
US2967249 | 1961 | Tracker Mechanical Bimetallic | Quick; Robert W. | Servomechanism For Tracking A Heat Source | (Bimetallic strip movement) US4027651 | 1977 | Tracker Mechanical | Robbins; Roland W. | Solar energy powered sun tracker | (All pneumatic tracker producing a differential pressure to actuate a cylinder) Pneumatic
US4585318 | 1986 | Tracker Mechanical T-Pole | Seifert; Dieter | Tracking device | (Sort of a Polar Axis mount. Dual axis motion caused by linkages. These linkages simulate polar axis motion even though the actual mount is technically Vertical Axis. By changing the length of the link seasonal declination motions are also simulated. While there are errors in the motions the error is reasonably low enough for use with flat panel collectors such as PV Panels. See Siryj) T-Pole with Linkages
US20090025708 | 2008 | Tracker Mechanical | Shingleton; Jefferson G. | Rolling Motion Tracking Solar Assembly | (An interesting way to tilt a panel array by rolling along a circular lower edge and a "U-Joint" pivot support. This has similar motion to the "3 Pivot Point" Tripod Tracking Mount like Hilber Note! The U-Joint and circular track are, generally, on the same horizontal plane with the U-Joint at the center of the circular track. A U-joint instead of a Ball-Joint is required to prevent the panel from slipping on the track. Alternativly if a Ball-Joint is used the track could have gear teeth to prevent the the rotation.) Rolling Tracking Mount
US4295621 | 1981 | Tracker Mechanical T-Pole | Siryj; Bohdan W. | Solar tracking apparatus | (Dual Axis T-Pole using links and gears. See Seifert) T-Pole with Gears and Linkages
US4442348 | 1981 | Tracker Mechanical T-Pole | Snyderl; Wesley L. | Solar tracking apparatus for a gimbaled body | (Weird ball sort of thing) Ball
US4266530 | 1981 | Tracker Mechanical Arc Heliostat | Steadman; Robert W. | Sun ray tracker | (Arc Heliostat with Mirrors moved and tilted in circular tracks. Arc Heliostat with Circular Tracks
US4274394 | 1979 | Tracker Mechanical Bimetallic | Stromberg; Robert P. | Electromechanical solar tracking apparatus | (Bimetallic strip movement) US6960717 | 2002 | Tracker Mechanical | U-Joint Stuart; Donald J. | Ryan; Patrick H. Adjustable solar panel | (Another U-joint mount. Also, another one of those why bother patents that have no hope of being upheld.) U-joint Mechanism
US4172739 | 1979 | Tracker Mechanical T-Pole | Tassen; Devon | Sun tracker with dual axis support for diurnal movement and seasonal adjustment | (TPole with cable tilt. The cable changes the tilt throughout the day, pulling the panels towards the horizon at sunrise and sunset.) Cable Adjusted
US4365616 | 1982 | Tracker Mechanical Bimetallic | Vandenberg; Leonard B. | Self-aligning solar collector
| US4251819 | 1981 | Tracker Mechanical | Ball-Joint Vickland; Jack M. | Variable support apparatus | (Mechanical tracker similar to the U-joint mechanism I call it a Ball-Joint mechanism. See Gueguen (1976) dish.) Ball-Joint Mechanism
US4202321 | 1980 | Tracker Mechanical Clockwork | Volna; William M. | Solar tracking device | (Mechanical dual axis clockwork tracker with seasonal adjustments. Not a heliostat.) Tracker Clockwork drive
US4262654 | 1981 | Tracker Mechanical | Ward; Carter J. | Solar energy powered sun tracker | (See Baer US4476854) Liquid Mass Transfer
vane | | Vane Compressors or Engines
| US4566863 | 1986 | Vane | Goto | Sugiura Suzuki Rotary compressor operable under a partial delivery capacity | Vane
US3964442 | 1976 | Vane | Hunter | Internal combustion engine | Vane Engine
vehicles | | Alternative Vehicles
| US1155170 | 1915 | Vehicles Electric Control | Storer; N. W. | System And Method For Control Of Electric Motors | (Power Controller using complicated selector switches. 3 different battery packs in series/parallel and motor windings in series/parallel plus battery taps.) US1291233 | 1919 | Vehicles Electric Control | Storer; N. W. | Control System | (Power Controller using complicated selector switches. 3 different battery packs in series and motor windings in series/parallel.) 1919 electric car controller
US1607002 | 1926 | Vehicles Electric Control | Keller; George M. | Electric-Motor-Control System | (Series control of batteries. Voltage outputs of 1X, 2X. But not in parallel) Series Control with complicated switches
US3280397 | 1966 | Vehicles Electric Control | Bruns; William Henry | Industrial Truck | (A rotary switch Power Controller. Voltage outputs of 1X to 6X. Interesting arrangement of contacts on the rotary switch. Not so good as the bottom battery is used continuously and the top rarely.) Multi battery controller
US3286152 | 1966 | Vehicles Electric Control | Noe; J. B. | Multiple Battery Charging And Discharging Circuit Means | (Charge batteries in series and discharge in parallel.) Series Charging, Parallel Discharging
US3320565 | 1967 | Vehicles Electric Control | Campbell; Robert W. | Sawyer; Elbert M. Ruff; Donald O. Kirk; Thomas E. Ramey; Lyle M. Worrell; William D. Inductor Device | (Power Controller using battery taps and convert this variable DC voltage to 3 phase variable frequence AC. The motor is a 3 phase reluctance type. Not so good as the bottom battery is used continuously and the top rarely.) Reluctance Motor Driver
US3384758 | 1968 | Vehicles Electric Control | Kelly; Thomas R. | Regulation System For Multiple D-C Sources | (Multiple batteries controlled with separate Buck Converters and seriesed free wheeling diodes. Similar to my BatPack controller.) Multiple Buck Converters
US3387194 | 1968 | Vehicles Electric Control | Banks; Donald S. | Electric Motor Control System Including A Bank Of Batteries For Series/Parallel Operation | (Power Controller for Multiple batteries using switches and diodes. Voltage outputs of 1X to 6X. Similar to my BatPack controller. It even allows arbitrary selection of the desired battery.) Multi battery controller
US3437826 | 1969 | Vehicles Electric Control | Kelly; Thomas R. | Control Circuit For Controlling Duty Op A Plurality Of D-c Sources | (Multiple batteries controlled with separate Buck Converters and seriesed free wheeling diodes. Similar to my BatPack controller.) Multiple Buck Converters
US3493696 | 1968 | Vehicles Electric Charging | Rothweiler; R. C. | Modular Selector Switch Assembly | (Power Controller using switches.) US3530356 | 1970 | Vehicles Electric Control | Aronson; Robert R. | Regenerative System For Electric Vehicle | (Power Controller with single voltage batteries. Regeneration done with seperate generator.) Regeneration
US3573582 | 1971 | Vehicles Electric Control | Petrocelli; Edward A. | Large DC Motor Control Circuit | (Sequential selection of batteries in series using SCRs. Not so good as the bottom battery is used continuously and the top rarely.) Series Control of batteries with SCRs
US3611091 | 1971 | Vehicles Electric Control | Genovese; Salvatore | DC Motor Will Plural Battery Supply | (Battery switching with relays.) US3728599 | 1973 | Vehicles Electric Control | Minimuri; Hirosi | Control System For An Electric Automotive Vehicle | (Series control of batteries using relays and diodes. Voltage outputs of 1X, 2X, 3X, 4X.) Series/Parallel Control With Relays and Diodes
US3923116 | 1975 | Vehicles Electric Control | Thompson; Francis T. | Bauer; James A. Electric Vehicle Having Improved Battery Reconnect | (Series/Parallel control of batteries. Voltage outputs of 1X, 2X.) Series/Parallel batteries
US3984744 | 1976 | Vehicles Electric Control | Moody; Warren E. | D.C. voltage control system | (Series/Parallel control of batteries. Voltage outputs of 1X, 2X, 3X, 4X.) Series/Parallel batteries
US4075541 | 1978 | Vehicles Electric Control | Shibata; Takamori | Marumoto; Katsuji Direct current motor control device for use in battery automobiles | (Series/Parallel control of batteries. Voltage outputs of 1X, 2X, 4X.) Series/Parallel Control With SCRs
US4129817 | 1978 | Vehicles Electric Control | Yew; Ming-Chih | Jones; Trever O. Stepped voltage power supply with equalized discharge of battery cells | (A pair of contacts on the rotary switch mechanism picks pairs of taps on the battery string. When more voltage is desired the leading contact is advanced. When less voltage is desired the trailing contact is advanced. The important thing is that statisticly all batteries are subjected to similar amounts of discharge. This is clearly the mechanical equivelant to my BatPack. The basic difference is the inability to arbitrarily pick batteries to add or remove from the string.) Ratcheting Rotary Switch
US4306179 | 1981 | Vehicles Electric Control | Whitford; Darryl R. | Electric Power Control System | (An instantly variable constant current control is interposed between a bank of batteries and a motor. A pair of contacts on the rotary switch mechanism picks pairs of taps on the battery string.) Rotary Switch
US4360766 | 1982 | Vehicles Electric Control | Bogardus; Carl R. | Multi-battery power supply for DC motors | (Series control of batteries using relays and diodes. Voltage outputs of 1X, 2X, 3X, 4X. Not so good as the bottom battery is used continuously and the top rarely.) Multi battery controller
US5455884 | 1993 | Vehicles Electric Control | Yang; Tai-Her | Stepped Compound Voltage Control Circuit Of Battery In Combination With Field-Controll DC Motor Driving Circuit | (Series/Parallel control of batteries. Voltage outputs of 1X to 6X.) Series/Parallel batteries Series/Parallel batteries
BatPack | 1994 | Vehicles Electric Control | Johnson; Duane C. | BatPack EV Power Controller with Regeneration. | (This is my version of an electric car power controller.) In the Car BatPack Power Controller
US5971091 | 1999 | Vehicles Electric | Kamen; Dean L | Sugiura Ambrogi Duggan Heinzmann Key Skoskiewicz Kristal Transportation vehicles and methods | (Very cool one or two man transportation where the riders stand on a platform. The platform is mounted on 6 wheels where only 2 are in contact with the ground. It balances on two wheels. It's capable of walking up a stairway.) It?
US5975225 | 1999 | Vehicles Electric | Kamen; Dean L | Sugiura Ambrogi Heinzmann Transportation vehicles and methods | (Electric wheelchair. The wheelchair is mounted on 6 wheels where only 2 are in contact with the ground. It's capable of walking up a stairway.) Kamen
water | | Water
| US6014968 | 2000 | Water Collector | Teoh; Siang Teik | Tubular heating-pipe solar water-heating-system with integral tank | Solar water panel
US4325788 | 1982 | Water Distillation | Snyder | Distillation apparatus with solar tracker
| US4235679 | 1980 | Water Distillation | Swaidan | High performance solar still
| US4040486 | 1977 | Water Pump | Kirkland | Method and apparatus for air development and rejuvenation of water wells
| US4671741 | 1987 | Water Pump | Baumberg | Pipe for elevating liquids through successively arranged accumulating and communicating portions, and device provided therewith
| US4579511 | 1986 | Water Pump | Burns | Air lift pump system
| US4373867 | 1983 | Water Pump | Campbell | Pressure charged airlift pump | (Using a Double Diaphram Pump down the well.) US4163035 | 1979 | Water Pump | Gorsky | Aquarium water aeration device
| US5527461 | 1996 | Water Pump | Hill | Airlift oil scavenger
| US5382137 | 1995 | Water Pump | Lane | Multiple stage airlift pump
| US4540344 | 1985 | Water Pump | Mulvenna | Energy transfer device | (Pumping action by shaking a tube of fluid. See: C. Mulvenna, P.Eng) US4242053 | 1980 | Water Pump | Mulvenna | Free piston fluid energy transfer device | (Swashplate free piston pump. See: C. Mulvenna, P.Eng) US5780935 | 1998 | Water VAWT | Kao | Hydropower turbine system | (University of Iowa) US4441029 | 1984 | Water VAWT | Kao | Hydropower turbine system | (University of Kentucky) wind | | Windmills | Augmented = Augmented Wind Turbine HAWT = Horizontal Axis Wind Turbine. VAWT = Vertical Axis Wind Turbine. US20140354053 | 2014 | Wind Augmented | Ramirez; John | <mobilenergies@gmail.com> Hybrid wind power generator and concentrator with solar panel for improved power generation | (Hybrid wind power generator with solar panel for improved power generaton.) Hybrid wind power
US4146800 | 1979 | Wind Electrostatic | Gregory | Schurig Apparatus and method of generating electricity from wind energy
| US4206396 | 1980 | Wind Electrostatic | Marks | Charged aerosol generator with uni-electrode source
| US4433248 | 1984 | Wind Electrostatic | Marks | Charged aerosol wind/electric power generator with solar and/or gravitational regeneration
| US4494009 | 1985 | Wind Electrostatic | Yukl | Method and apparatus for capturing an electrical potential generated by a moving air mass
| US4288199 | 1981 | Wind HAWT Airfoil | Weisbrich | TARP Yaw track means for rotors | (Turbine with augmenter.) US4332518 | 1982 | Wind HAWT Airfoil | Weisbrich | Multifunctional tarp rotor strut vanes | (Turbine with augmenter.) US4540333 | 1985 | Wind HAWT Airfoil | Weisbrich | TARP Rotor system thrust, yaw and load control | (Turbine with augmenter.) US4156579 | 1979 | Wind HAWT Airfoil | Weisbrich | Toroidal accelerator rotor platform (TARP) | (Turbine with augmenter.) US4276033 | 1981 | Wind HAWT American | Krovina | Sailing system | (Flexible boat sail looks like a toy pinwheel. The pinwheel rotates to provide rotary power.) US4362470 | 1982 | Wind VAWT | Locastro | Giemsch Wind turbine
| US3918839 | 1975 | Wind VAWT Darious | Blackwell | Feltz Maydew Wind turbine
| US4718821 | 1988 | Wind VAWT Darious | Clancy | Windmill blade
| US4341176 | 1982 | Wind VAWT Darious | Orrison | Air foil with reversible camber
| US4383801 | 1983 | Wind VAWT Darious | Pryor | Wind turbine with adjustable air foils | (Movable air foil) US4082479 | 1978 | Wind VAWT Darious | Rangi | South Overspeed spoilers for vertical axis wind turbine
| US4355956 | 1982 | Wind VAWT Darious | Ringrose | Dahle Wind turbine | (Flexible air foil) US4818180 | 1989 | Wind VAWT Drag | ???? | ????
| US4681512 | 1987 | Wind VAWT Drag | Barnard | Self-fairing windmill vane | (Flapping sail. The working and furled sail positions and shapes are obtained by the shape of the sail spar without the use of either lines nor meshes.) US4047834 | 1977 | Wind VAWT Drag | Benesh | Horizontal multidirectional turbine windmill | (Savonius type rotor with augmenter.) US4359311 | 1982 | Wind VAWT Drag | Benesh | Wind turbine rotor
| US4838757 | 1989 | Wind VAWT Drag | Benesh | Wind turbine system using a Savonius type rotor
| US4715776 | 1987 | Wind VAWT Drag | Benesh | Wind turbine system using a Savonius type rotor
| US4784568 | 1988 | Wind VAWT Drag | Benesh | Wind turbine system using a vertical axis Savonius-type rotor
| US4830570 | 1989 | Wind VAWT Drag | Benesh | Wind turbine system using twin Savonius-type rotors
| US5494407 | 1996 | Wind VAWT Drag | Benesh | Wind turbine with Savonius-type rotor
| US4527950 | 1985 | Wind VAWT Drag | Biscomb | Wind motor | (Flapping rigid sails) US4208168 | 1980 | Wind VAWT Drag | Chen | Chen Chen Wind turbine | (Flapping sail louvers with the shapes determined by lines and meshes.) US5525037 | 1996 | Wind VAWT Drag | Cummings | Overlapping sail wind turbine | (Flapping rigid sails) US4218183 | 1980 | Wind VAWT Drag | Dall-Winther | Windmill | (Flapping rigidly held sail.) US4015911 | 1977 | Wind VAWT Drag | Darvishian | Higher efficiency wind motor with receptors of diminished drag characteristics | (Flapping rigid louvers.) US3897170 | 1975 | Wind VAWT Drag | Darvishian | Wind motor | (Flapping rigid hemispherical cups similar to a meteorological anemometer.) US4191507 | 1980 | Wind VAWT Drag | DeBerg | Windmill | (Flapping sail has a similar action to Green without the mechanical communication through connecting lines. The sails are rectangular.) US4684817 | 1987 | Wind VAWT Drag | Goldwater | Valvular sail power plant | (Flapping sail louvers with the shape determined by lines and meshes combined with a Savonius shape. The shape is an improvement over Chen.) US3995170 | 1976 | Wind VAWT Drag | Graybill | Wind energy conversion device | (Flapping rigid sail made from two sections joined and hinged.) US5823749 | 1998 | Wind VAWT Drag | Green; Robert R. | <rgreen999@aol.com> Vertical-axis wind turbine with two-phase sails | (Flapping Sail with interesting method to control the opening and closing of the sail by mechanical communication through connecting lines. The sails are triangular. As I see it, the basic improvement is in the mechanical communication through connecting lines. Similar patents without the communication lines are: DeBerg and Weisbrich. I believe these two patents are direct prior art because they, along with Green, maintain the shape of the sail by use of a single strait spar and flexible lines. Less similar prior art are: Chen and Goldwater. These patents maintain the shape of the sail using lines and meshes. Barnard obtains the sail shape with a single curved spar and without the use of either lines nor meshes. Other patents, Hillman and Rhodes, communicate the position of the working sail to the idle sail by use of a rotating shaft. This mechanism is similar to Green's use of communicating lines. All the flapping sail patents have similarities to Green's flapping sail patent. Green Windmill) Canvas Windmill
US802144 | 1905 | Wind VAWT Drag | Harrington; Benoni R. | Windmill | (Flapping rigidly held sail with retraction mechanism) US3810712 | 1974 | Wind VAWT Drag | Hillman | Wind powered motive apparatus | (Flapping rigidly held sail with retraction mechanism for a portion of rotation. One sail communicates working position to the opposite idle position through a shaft.) US4474529 | 1985 | Wind VAWT Drag | Kinsey | Windmill | (Savonius rotor with wind oriented shield.) US4496283 | 1985 | Wind VAWT Drag | Kodric | Wind turbine | (Flapping rigid sails) US5226806 | 1993 | Wind VAWT Drag | Lubbers | Vertical axis wind turbine | (Flapping rigidly held sail with orientation mechanism for a portion of rotation.) US4288200 | 1981 | Wind VAWT Drag | O'Hare | Wind tower turbine | (Savonius rotor built into the top of a wing shaped augmenter) US4342539 | 1982 | Wind VAWT Drag | Potter | Retractable wind machine | (Savonius rotor made with sail sections) US4408956 | 1983 | Wind VAWT Drag | Price | Flip-flop turbine vane module | (Flapping air foil vanes operated positioned mechanically) US5083902 | 1992 | Wind VAWT Drag | Rhodes | Reverting wind wheel | (Flapping rigidly held sail. One sail communicates working position to the opposite idle position through a shaft. This patent looks to be the same as one embodiment of Hillman's patent.) US4545729 | 1985 | Wind VAWT Drag | Storm | Wind turbine apparatus | (Retractable sails) US4364709 | 1982 | Wind VAWT Drag | Tornquist | Wind power converter | (Flapping sail has a similar action to Green without the mechanical communication through connecting lines. The sails are cone shaped.) US4021140 | 1977 | Wind VAWT Drag | Weisbrich | Variable geometry windturbine | (Flapping sail has a similar action to Green without the mechanical communication through connecting lines. The sails are parachute shaped.) US5520505 | 1996 | Wind VAWT Drag | Weisbrich | Wind amplified rotor platform (warp) | (Flapping sail has a similar action to Green without the mechanical communication through connecting lines. The sails are parachute shaped.) US4365935 | 1982 | Wind VAWT Drag | Zukeran | Wind-driven prime mover | (Flapping rigidly held sail.) xerography | |
| US3867170 | 1975 | Xerography | Ferguson | Komp; Richard J Method for cleaning liquid developers
| US3723793 | 1973 | Xerography | Komp; Richard J | Weigl Coated Corona Generating Electrode
| US3862801 | 1975 | Xerography | Komp; Richard J | Method of cleaning an electrostatographic imaging surface
| US3725059 | 1973 | Xerography | Komp; Richard J | Method of Cleaning an Electrostato-graphic Imaging Surface
| US3789216 | 1974 | Xerography | Komp; Richard J | Photodetection Device and Method Comprising Phthalocyanine
| US3566108 | 1971 | Xerography | Weigl | Komp; Richard J Corona Generating Electrode Structure For Use In a Xerographic Charging Method
| |
| US958354 | 1909 | Interesting Patents | Avery; Charles E. | Electric Motor (Reversible Solenoid Electric Engine. I have one of these antiques!!! Mine has a double flywheel.) Electric Engine |
| US512340 | 1894 | Interesting Patents | Tesla; Nikola | Coil for Electro-Magnets (.) Electric Engine
|
| US20100252647 | 2010 | Global Warming Fixer | Ace; Ron | Benign Global Warming Solution Offers Unprecedented Economic prosperity (Completely Nuts.) |
| US5889383 | 1999 | Acoustic Battery Charger | Teich | System and method for charging batteries with ambient acoustic energy |
| US5949594 | 1999 | Advertising in Space | Iglseder Arens-Fischer | Process for the generation of information in space (Spaced based solar iluminated advertising. The optical physics doesn't allow this sort of thing as the light, no mater how clever, can never form a beam with a divergence less than about 1/2°.) Space Advertising
|
| US6025810 | 2000 | Antenna | Strom; David L. | Hyper-light-speed antenna |
| US5927272 | 1999 | Cigarette Lighter | Robertson | Combination solar powered cigarette lighter and telescope |
| US4237868 | 1980 | Concentrator Dish | Overton | Solar heating balloon (Inflatable Tethered Balloon Solar Collector.) |
| US4761909 | 1988 | Do any of you Ice Fish? | Christian Gray Gray | Ice hole fishing plug |
| US5765387 | 1998 | Free Energy | Amin | Device and method for thermal transfer using air as the working medium |
| US5547341 | 1996 | Free Energy | Amin | Device for thermal transfer using air as the working medium |
| US4238968 | 1980 | Free Energy | Cook; Robert L. | Device for conversion of centrifugal force to linear force and motion |
| US4553748 | 1985 | Game with Shocking Results | Allen Harrison | Electrostatically enhanced game (A video game where the looser gets an electric shock. Fun huh?) |
| US4150505 | 1979 | Gross | Voelker | Bird trap and cat feeder Bird Trap Cat Feeder
|
| US4605000 | 1986 | Helmets | Anguita | Greenhouse helmet |
| US6024935 | 2000 | Hydrogen | Mills Good Phillips Popov | Lower-energy hydrogen methods and structures ( An example of a patent being granted to "crank" science ) |
| US5794601 | 1998 | IC Carburetor | Pantone | Fuel pretreater apparatus and method (The GEET carburetor) |
| US5989178 | 1999 | Medical Quackery | Teich | Magnetic ring |
| US4003094 | 1977 | OK Trekers, Remember Julie Newmar? | Newmar | Pantyhose with shaping band for cheeky derriere relief |
| US3879622 | 1975 | Perpetual Motion | Ecklin | Permanent magnet motion conversion device |
| US4877983 | 1985 | Perpetual Motion | Johnson; Howard R. | Magnetic force generating method and apparatus |
| US5402021 | 1995 | Perpetual Motion | Johnson; Howard R. | Magnetic propulsion system |
| US4151431 | 1979 | Perpetual Motion | Johnson; Howard R. | Permanent magnet motor |
| US3811058 | 1974 | Perpetual Motion | Kiniski | Rotary-to-Reciprocating Device |
| US20090114210 | 1993 | Solar | Guice; David L. Shatas; Remigius Dent; William V. Jr. | Method and Apparatus for Controlling Weeds with Solar Energy () Weed Killer
|
| US5211172 | 1993 | Tracker | McGuane Lawless Wu | Solar controlled sun tracker for a sunbather |
| US5556029 | 1996 | Weather Control Heliostat | Griese | Method of hydrometeor, (clouds), dissipation |
| US8104743 | 2009 | Mechanical Device | Stevens; David Brian Drummond; Bruce Alan | Pull string installation device for electrical system raceways (Bruce, ibruce, works with Parallax Propellers and stepper motors.) |
| US4467194 | 1984 | Optical Sensor | Foreman <dforeman@goldengate.net> | Omnidirectional electro-optical receiver (From Fridley, MN) |
| US4561006 | 1985 | Soldering | Currie; Thomas P. <thomas.currie@unisys.com> | Integrated circuit package with integral heating circuit (Unisys) |
| US5410403 | 1995 | Particle Measuring System | Wells; David N. <laseraxe@erols.com> | Particle measuring system with pump adapted to maintain constant flow for different pressures and viscosities (One of David Wells' patents.) |
| US5575409 | 1996 | Mixer System | Gruendeman; Peter <gruendeman@worldnet.att.net> | Static mixer nozzle configuration that removably receives a locking hub thereon |
| US5583561 | 1996 | Digital Video | Baker; Donn <donn.baker@unisys.com> Johnson Sipple | Multi-cast digital video data server using synchronization groups (Unisys) |
| US5746158 | 1997 | Hunting dog signal device | Landherr; Nicholas N. <theflag@smig.net> | A visual indicia signal device to be worn by hunting dog in order that a hunter can maintain visual contact with the dog while engaging in hunting activity. |
| US5829639 | 1992 | Mixer System | Gruendeman; Peter <gruendeman@worldnet.att.net> Halat | Serial connectors for motionless mixers |
| US5829639 | 1998 | Mixer System | Gruendeman; Peter <gruendeman@worldnet.att.net> Horner | Flowable material dispenser with chambers |
| US5835211 | 1998 | Optical Sensor | Wells; David N. <laseraxe@erols.com> | Single-particle optical sensor with improved sensitivity and dynamic size range (One of David Wells' patents.) |
| US6123251 | 2000 | Soldering | McClain; Sean M. Tamarkin; Vladimir K. | Apparatus and method for soldering (Unisys) |
| US5473110 | 1995 | EMI | Johnson; Duane C. <redrok@redrok.com> | Magnetically-attachable EMI shielding cover for attenuating electromagnetic emanation (My patent for Unisys) Magnetic EMI cover
|
| US6617913 | 2001 | H-Bridge | Johnson; Duane C. <redrok@redrok.com> | Self-latching H-bridge system and apparatus (My patent for Unisys) H-Bridge
|
| US6717389 | 2001 | Transient Filtering | Johnson; Duane C. <redrok@redrok.com> | Method and apparatus for current controlled transient reduction in a voltage Regulator (My patent for Unisys) Transient Filtering
|
| US7602493 | 2009 | Instrument | Ramirez; John <mobilenergies@gmail.com> | Electronic color matching apparatus and method of display (In accordance with the description, electronic color matching apparatus with a display of multiple independently controllable segments enable a user to visually compare, capture, catalog and disseminate color as tangible information.) |
| US20140354053 | 2014 | Wind Augmented | Ramirez; Johnny <mobilenergies@gmail.com> | Hybrid wind power generator and concentrator with solar panel for improved power generation (Hybrid wind power generator with solar panel for improved power generation.) Hybrid wind power
|
| US20140352757 | 2014 | Solar Tracker | Ramirez; Johnny <mobilenergies@gmail.com> | Smart modular automated multi axis case for solar modules, panels, electronic displays, sensors, and the like (This alternative hybrid wind concentrator generator provides low wind environments with improved added capabilities for various power generation applications.) Solar Tracker
|
| US20160119705 | 2015 | Cell Phone Accesory | Ramirez; John <mobilenergies@gmail.com> | UNIVERSAL SMART MOBILE ELECTRONIC GEAR HUB AND SPECIALTY EARPHONE CASE (U.S. Provisional Patent Application No. 61/999,602, filed on Aug. 1, 2014, entitled “Multi-Functional Earphone and or Efficiency Case Computer, Controller, and Method Thereof Incorporating Electronic Display, Lighting, Memory Battery Back Up, Plug in Ports, Mp3 Player, Speaker, Wind, Solar Power Generator, Wireless Info Power Transfer in Hard Protective Case Housing for the Like,) Cell Phone Accesory
|